Office tower Flemish Administrative Centre

POLO Architects

Office tower Flemish Administrative Centre

Im Dialog mit der Umgebung

Der neue Bürokomplex in Gent bezieht seine Identität aus dem Dialog mit seiner Nachbarschaft. Im Turm wird gearbeitet, die niedrigeren Gebäudeteile stehen der Bevölkerung offen.

 

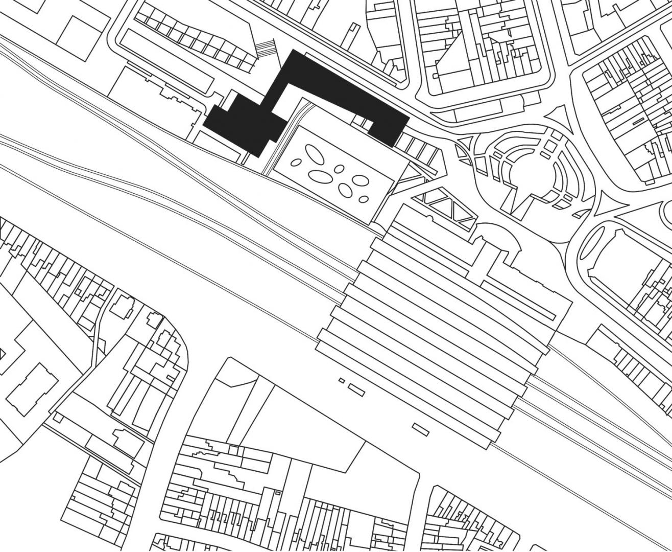
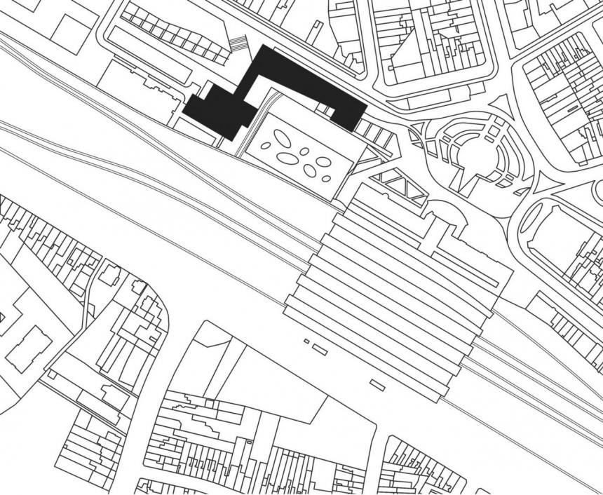
Die flämische Regierung verfolgte seit dem Jahr 1999 das Ziel, ihre Beamten in Verwaltungszentren anzusiedeln, die in den fünf Provinzhauptstädten jeweils in unmittelbarer Nähe zu den Bahnhöfen errichtet werden sollten. Das Virginie Lovelinggebouw neben dem Bahnhof Gent-Sint-Pieters ist das letzte und größte dieser Verwaltungszentren. Der Bau des Hochhauses war der Startschuss eines ambitionierten Stadterneuerungsprogramms auf dem Gelände eines ehemaligen Rangierbahnhofs. Beim internationalen Architekturwettbewerb für das Zentrum waren verschiedene Parameter klar vorgegeben. Der Masterplan sah ein zweiteiliges Gebäude vor, bestehend aus einem Büroturm entlang des Bahndamms und einem Flachbau an der Straße Koningin Fabiolalaan.

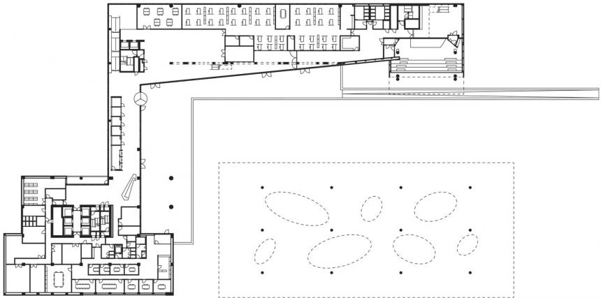
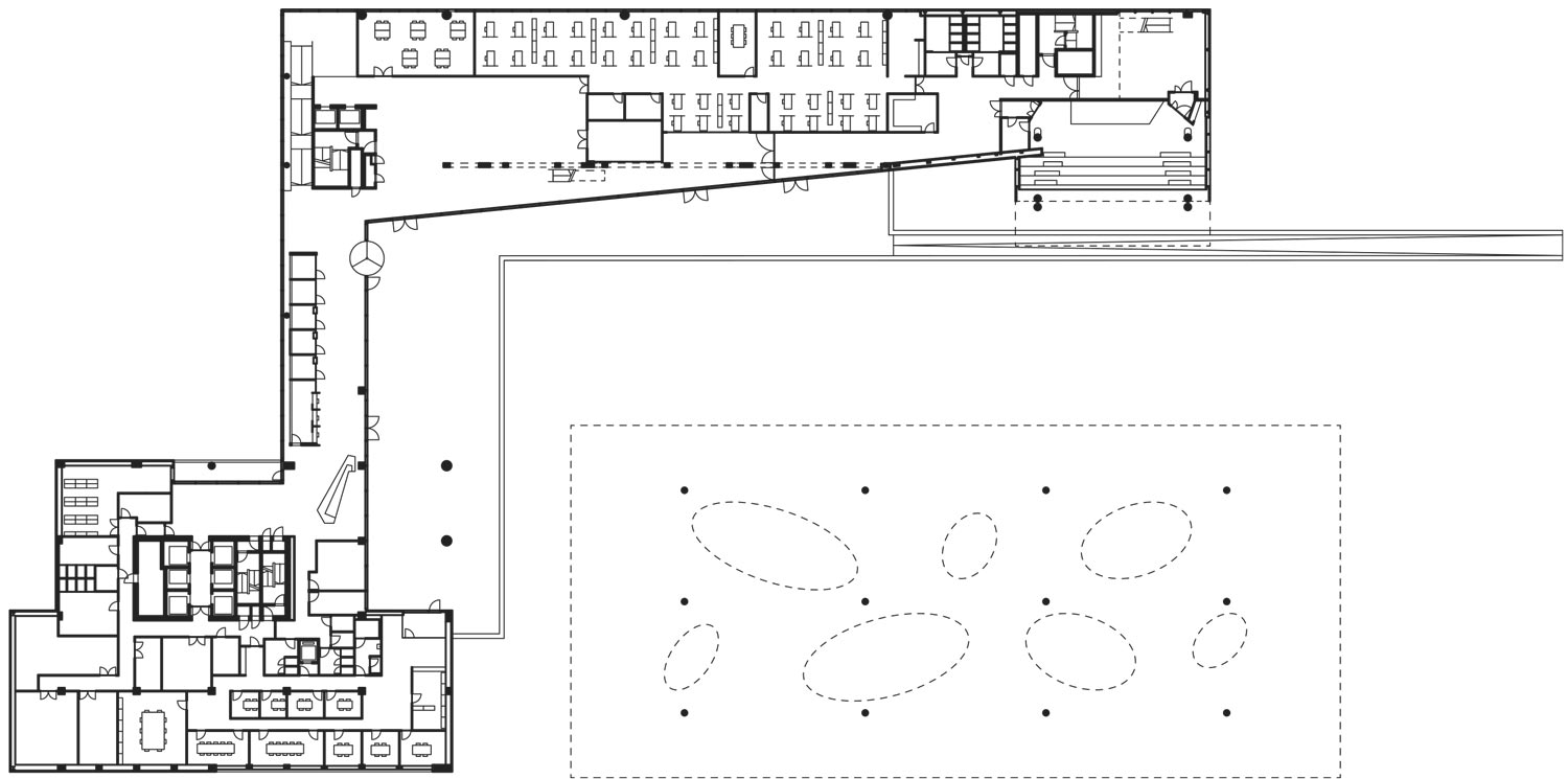
In diesem Teil sind öffentlich zugängliche Bereiche wie eine Ausstellungsfläche, ein Auditorium, eine Mehrzweckhalle und eine Kinderbetreuungseinrichtung untergebracht. Unterhalb des L-förmigen Gebäudes befindet sich ein Platz, der ein vielgenutzter Knotenpunkt des öffentlichen Nahverkehrs mit verschiedenen Straßenbahnlinien, Bushaltestellen und Fahrradabstellmöglichkeiten ist. Auch eine Tiefgarage für Pendler ist vorhanden. Mit einigen geschickten Maßnahmen fand der siegreiche Entwurf Antworten auf verschiedene komplexe Herausforderungen im urbanen Raum. Die erste war die Verknüpfung des Bürokomplexes mit dem Umsteigeknotenpunkt für den öffentlichen Nahverkehr. Um zu verhindern, dass starker Verkehr die öffentliche Anziehungskraft des Turms beeinträchtigt, erfolgt der Eingang über einen „schwebenden“ Platz. Das Erdgeschoss wurde über den Verkehrsknotenpunkt gehoben.So entstand ein Freiraum von der Verkehrshektik, der gleichzeitig einen Aussichtspunkt schafft.

Die beeindruckende Rampe, die vom Bahnhofsplatz her ansteigt, weist den Weg zum Gebäudeeingang. Die zweite Herausforderung lag darin, das große Bauvorhaben behutsam in das fragile Stadtgefüge einzubinden. Insbesondere die Beziehung zur Wohnbebauung entlang der Koningin Fabiolalaan galt dabei als heikel. Um eine Verbindung zu den kleinteiligeren Gebäuden des Viertels zu schaffen, verlagerte der Entwurf einen Teil des geplanten Volumens vom Gebäuderiegel auf den Turm. Der Blick aus den Häusern entlang der Koningin Fabiolalaan richtet sich damit auf ein maßvolleres Bauwerk, während der Turm höher wurde und schmaler wirkt. Gefordert war zudem, den Turm in das weitere Stadtbild zu integrieren. Das Verwaltungszentrum fügt der historischen Ansicht der „drei Türme“ von Gent eine weitere Spitze hinzu. Der neue Turm verfügt über eine Backsteinfassade und schafft über dieses Material eine Beziehung zu den Materialien der historischen Stadt.

 

POLO Architects

City
Gent, Belgium
Client
THV Landsbeek KVH
Built-up area
36.315 m²
Usable area
27.716 m²
Construction costs
55,5 Mio. EUR