Projekt Cadiz

POLO Architects, META Architectuurbureau, Dirk Vandekerckhove Landschapsarchitecten

Projekt Cadiz

Eine Stadt in der Stadt

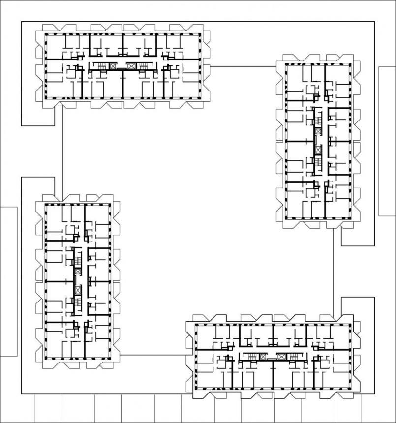
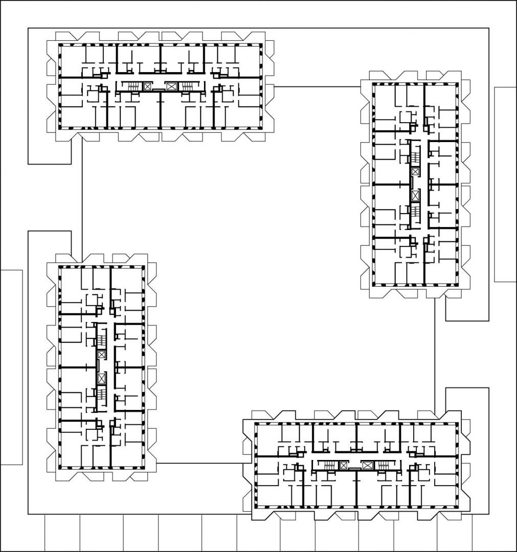
Das Projekt Cadiz am Kattendijkdok in Antwerpen ist mehr als nur die vier aus der Ferne sichtbaren Wohntürme. Es ist die Wiederbelebung eines Viertels durch einen Gebäudekomplex mit multiplen Nutzen.

 

Jahrzehntelang war das Antwerpener Stadtviertel Eilandje vernachlässigt worden. Mit neu geschaffenen staatlichen Anreizen kamen erst die Bauunternehmer und dann auch neue Anwohner in das Viertel am alten Hafen. Das Cadiz-Projekt bietet auf fast 40.000 Quadratmeter Fläche genug Platz für jede Menge Appartements, ein Gesundheitszentrum, Gastronomie und Geschäfte. Auf dem Gelände des ehemaligen Zollgebäudes errichtet, bringt der Gebäudekomplex neues Leben in das aufstrebende Viertel. POLO Architects und META architectuurbureau haben Sorge dafür getragen, dass eine große Zahl an Wohnungen wie auch gewerbliche Geschäftsfläche geschaffen wurde. Cadiz präsentiert sich dabei ganz unterschiedlich: Aus der Ferne sind die imposanten Wohntürme des Gebäudekomplexes zu sehen, die in ihrer Gestaltung und mit der Wahl des Backsteins als Baumaterial stark von der umliegenden Bebauung mit historischen Lagergebäuden beeinflusst wurden.

Von der Straße oder dem davorliegenden Platz aus werden die Türme von dem sie umlaufenden Komplex abgeschirmt. Der starke Kontrast des dunklen Sockels der Erdgeschossfassade zu den ausladend gestalteten, weißen Fassadenelementen aus Beton des ersten und zweiten Stockwerks fängt den Blick des Betrachters ein und verbindet die Türme zu einem einheitlichen Gesamtkomplex. Der gemeinschaftlich genutzte Garten im Inneren ist mit Birken und Waldbewuchs gestaltet und bietet Zugang zu den Wohntürmen. Alle Wohneinheiten verfügen über eine Terrasse oder eine Dachterrasse. Die Balkone der Wohnungen in den Türmen befinden sich an allen vier Seiten und sind versetzt angeordnet, sodass sie die optimale Menge an Sonneneinstrahlung bekommen. Gemeinsam mit den Gewerbeflächen des umlaufenden Gebäudeteils bildet das Zusammenspiel von Wohnungen mit anderen Funktionen des städtischen Lebens innerhalb eines Komplexes eine kleine Stadt innerhalb von Antwerpen.

 

POLO Architects, META Architectuurbureau, Dirk Vandekerckhove Landschapsarchitecten

City
Antwerpen, Belgien
Client
Cores Development, Builprom, Westhoek
Plot size
26.761 m²
Built-up area
12.142 m²
Usable area
39.991 m²
Enclosed volume
148.463 m³
Construction time
2013 – 2016
Construction costs
48 Mio. EUR