Siza-Pavillon Insel Hombroich
Álvaro Siza / Rudolf Finsterwalder
Inszenierung des Ortes
Losgelöst von gestalterischen Konventionen vereint der reduzierte Museumsbau Architektur, Kunst und Natur zu einer eindrucksvollen Gesamtkomposition.

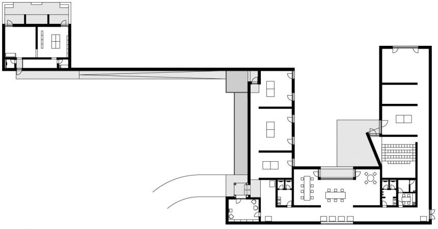
Poetisch ist der Naturbegriff von Álvaro Siza und so ist auch sein Projekt, das Kulturinstitut, in die Landschaft eingefügt. Kommt man auf der Raketenstation der Insel Hombroich an, so ist zuerst nur das Dach des Gebäudes sichtbar. Über eine inszenierte Wegführung gelangt der Besucher zwischen den Wällen hindurch zum Eingang. Betritt er das Gebäude, so erreicht er nach einer Drehung den Hauptraum, der ihm über einen spektakulären Ausblick die Intention des Gebäudes erschließt. Alle Räume orientieren sich um einen Innenhof, der einen gefassten Blick in die Landschaft und auf die Skyline Düsseldorf bietet. Raumgreifend öffnet sich das Kulturinstitut zur Landschaft, akzentuiert die vorhandene Topografie.
An einem Ausleger des Baus hängen zwei Gästewohnungen, die dem Volumen des Entwurfes zusätzlich Spannung verleihen. Die Außenwände sind mit dem gleichen unregelmäßigen Backstein aus Abbruchhäusern verkleidet wie die bestehenden Gebäude der Insel. Massive Eichenholzbalken bilden Tragwerk und sichtbare Decke des eingeschossigen Baus zugleich. Ein wenig ist der Fußboden innen über dem umgebenden Erdreich erhaben, ohne den Kontakt zur Landschaft zu verlieren. Der flach gehaltene Bau betont mit seinen niedrigen Fenstern und nicht hohen Räumen dieses horizontale, landschaftliche Motiv.
Der Boden ist wie die Decke aus Eichenholz, die Wände sind weiß. Für die Bekleidung der Bäder wird der gleiche, fast weiße portugiesische Kalkstein verwendet wie für die Fensterbänke und den vorgestellten Eingang. Genutzt werden soll der Bau als Architekturmuseum, das die Sammlung von architektonischen Modellen, Zeichnungen usw. der Stiftung Insel Hombroich zeigt. So sollen alle Architekten, die für die Stiftung geplant haben, vertreten sein. Der zukünftige Direktor, Prof. Wilfried Wang, will sowohl Wechselausstellungen zeigen als auch Teile der Sammlung. Im Fotoarchiv, das von Volker Kahmen geleitet wird, wird eine bedeutende fotografische Sammlung archiviert.
Álvaro Siza / Rudolf Finsterwalder