Haus LS
M&DB Architecten
Simplizität und Distinktion
Fernab jeder Kolonialstil-Romantik drückt sich die Qualität des Strandhauses in seiner zurückhaltenden Präsenz und kontrastierenden Materialität aus.

Haus LS steht an der Westküste Sri Lankas, wo das architektonische Ideal noch immer von der kolonialen Villa geprägt wird. Vor diesem Hintergrund fragten wir uns, mit welcher Architektur wir es vermeiden könnten, eine fragwürdige Vergangenheit zum Ideal zu stilisieren, ohne dabei die lokalen Baugepflogenheiten aus den Augen zu verlieren. Wir entschieden uns für eine Architektur, die lokale Materialien und Techniken rechtschaffen einsetzt, anstatt formalen Zwängen zu folgen. Diese Idee, logisch zu Ende geführt, brachte uns dazu, darüber nachzudenken, ob nicht vielleicht die Spuren und Zeichen, die vom Akt des Bauens herrühren, sowie die Texturen der Materialien selbst ein Design mit unmittelbar sensorischen Qualitäten erzeugen könnten.
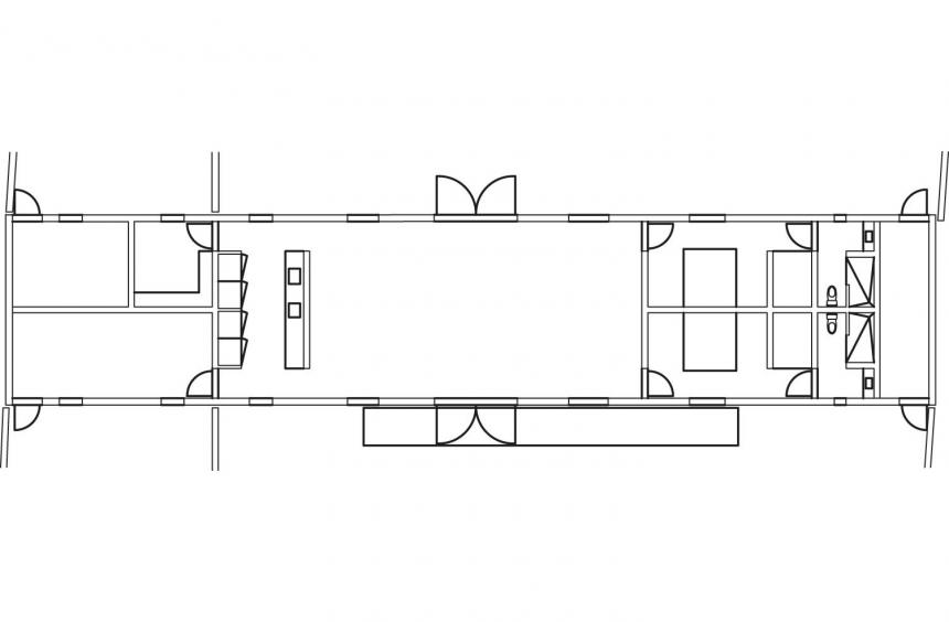
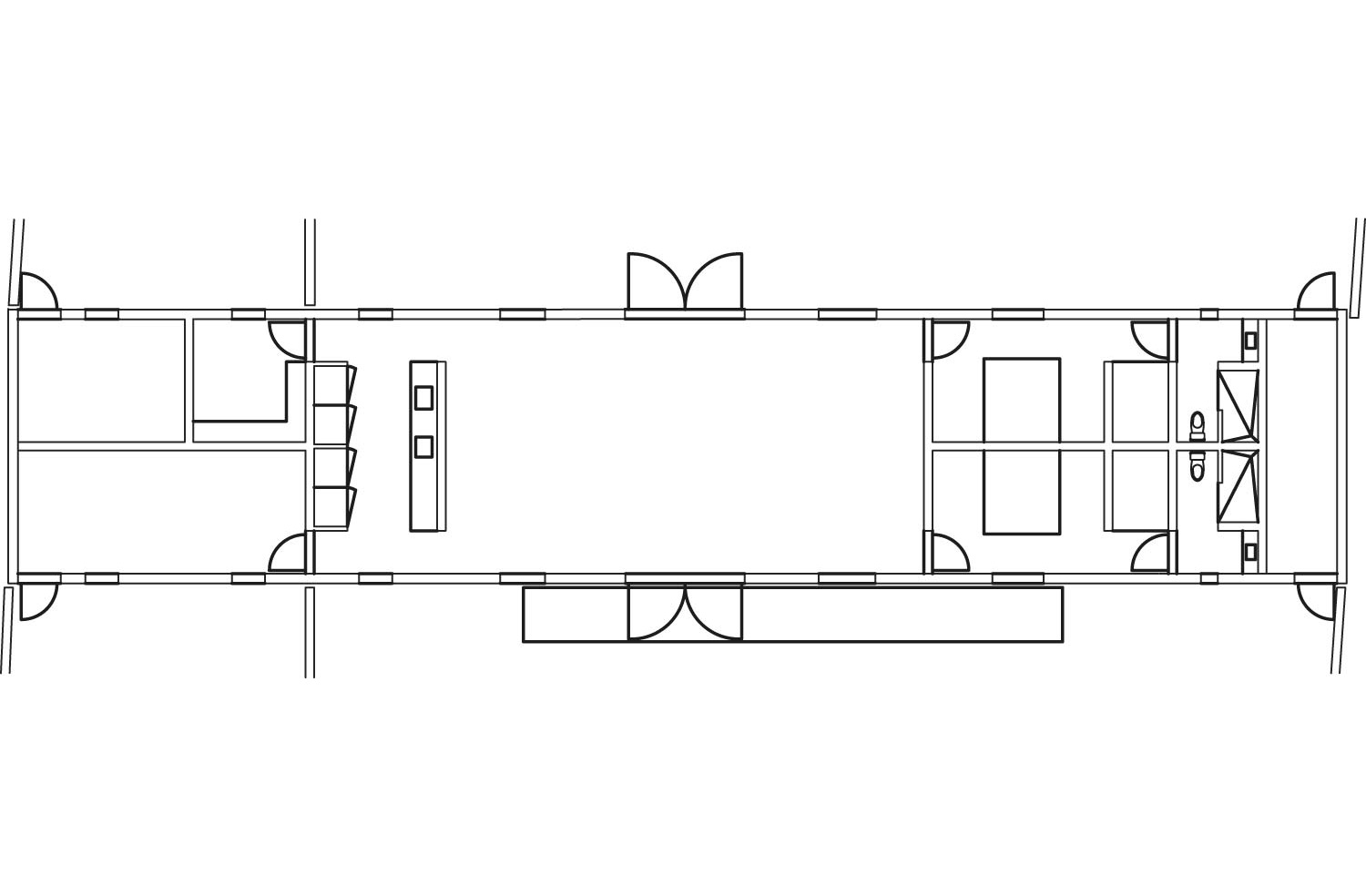
Die räumliche und strukturelle Gestaltung des Gebäudes wurde so klar und hell wie möglich gehalten. So entstand ein großes, weißes Gebäude, in dem alle Räume Platz finden und um einen großen Wohnbereich angeordnet sind (die lange Form ist durch die strengen lokalen Vorschriften für das Bauen an der Küstenlinie bedingt).
Es wurden ausschließlich preiswerte lokale Materialien verwendet: Wellbleche für das Dach, Backsteine, Holz und Beton. Die Details wurden so simpel wie möglich ausgearbeitet. Dabei wurde besonderer Wert auf die strenge Unterscheidung zwischen den verschiedenen Materialien und Komponenten gelegt. So ist nicht nur die Dachkonstruktion optisch von den Wänden getrennt, sondern auch die Fenster wahren eine gewisse Distanz zum Backsteinmauerwerk. Selbst das Wellblech scheint über dem hölzernen Dachstuhl zu schweben.
Die Spuren der Bauarbeiten und die bereits vorhandenen Texturen der Materialien bringen einem den eigentlichen Bau des Gebäudes ins Bewusstsein und erinnern daran, wie die Materialien von Hand bearbeitet und miteinander verbunden wurden. Auf diese Weise erhält das Gebäude einen ganz besonderen taktilen Charakter.
Die Außenwände bestehen sämtlich aus Backsteinmauerwerk, das im Blockverband gelegt wurde. Dieses wurde leicht mit einer Zementemulsion abgewaschen und danach weiß gestrichen. Dies war erforderlich, da die vor Ort erhältlichen Backsteine von schlechter Qualität sind und die Fassade so vor der aggressiven Meeresluft geschützt werden musste.
Auf den Backsteinwänden liegt ein Stahlbeton-Spannbalken, der für die nötige strukturelle Stabilität sorgt. Der Spannbalken wurde direkt auf dem Mauerwerk gegossen, sodass der Beton durch die Verschalung an den Backsteinen heruntertropfen konnte. Durch den Blockverband wird das rustikale Aussehen der Backsteine noch verstärkt. Da die Binder- und die Läuferschicht unterschiedlich breit sind, wirkt die Fassade leicht wellig. Auch die taktilen Eigenschaften der Fassade werden auf diese Art weiter hervorgehoben.
Alle Fensterrahmen sind etwa 20 Zentimeter niedriger als die Fassadenöffnungen. Dadurch entsteht oben auf den Fensterrahmen ein Belüftungsspalt, über den das Gebäude auch dann natürlich belüftet werden kann, wenn alle Jalousien geschlossen sind. Die Ausrichtung des Gebäudes hin zum Ozean und die weiße Farbgebung bewirken, dass die Temperatur im Innern zu keiner Zeit über 22 Grad steigt. Dies gilt selbst dann, wenn das Gebäude für längere Zeit geschlossen war.
M&DB Architecten