Defence Colony Residence
vir.mueller architects

Lebendige Baukultur
Das reichhaltige architektonische Erbe der indischen Hauptstadt zitierend, ist diese erdbebensicher konstruierte Wohnanlage alles andere als ein Anachronismus.
In Neu Delhi zwingt der galoppierende Anstieg der Grundstückspreise die Eigentümer von Bauland dazu, den Platz maximal auszunutzen. Das über Jahrhunderte gewachsene Straßenbild der Stadt, in dem stets ein Gleichgewicht zwischen privater Wohnbebauung und öffentlichen Straßen geherrscht hatte, wird so in rasendem Tempo zerstört. Trutzige, gemauerte Kästen, die keine Interaktion zwischen öffentlichem und privatem Raum zulassen, prägen immer stärker das Gesicht vieler Wohngegenden.
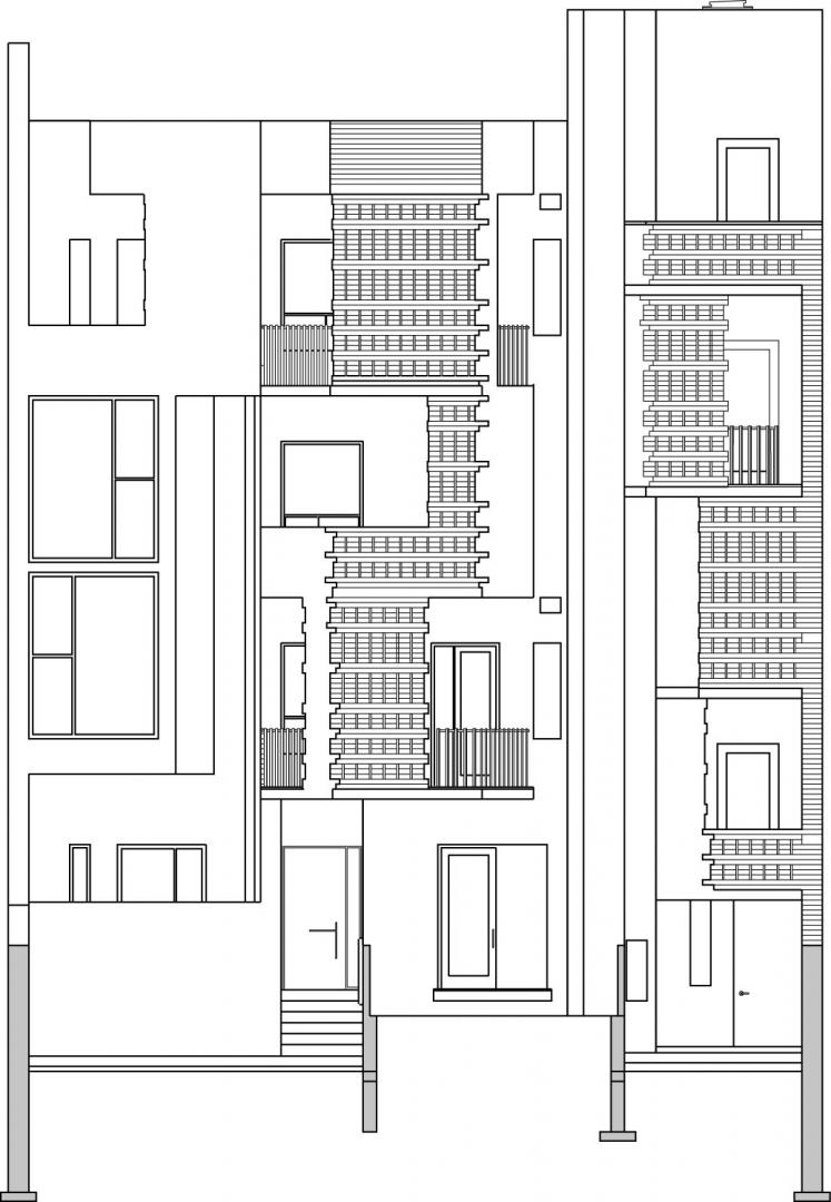
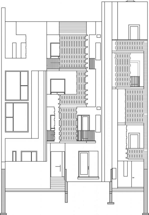
Bei der Residenz Defence Colony wird auf das materielle und tektonische Vokabular zurückgegriffen, das durch eine Vielzahl an Mausoleen und Palästen allgegenwärtig ist, die als Reste der mittelalterlichen, islamischen Architektur des 15. Jahrhunderts das urbane Bild Delhis prägen. Die Residenz verfügt über tragende Backsteinwände und wurde so konzipiert, dass das Gebäude selbst den Belastungen standhält, die in Erdbebenzonen der Klasse 4 erforderlich sind. Vor allem, indem auf ein einzelnes, elementares Baumaterial zurückgegriffen wurde, nämlich den lokalen Backstein, bleibt die Residenz der architektonischen und urbanen Tradition treu.
Die Masse der Backsteine kommt sowohl in der Stärke der Wände als auch in der Oberflächenstruktur zur Geltung. Das Haus bleibt kühl und erhält gleichzeitig eine gediegene, erdige Nuance. Auf der Westseite des Gebäudes verwandeln sich die Backsteine des Sonnenschutzes gleichzeitig in einen wogenden, luftigen Schleier. Alle Türen und Fenster wurden von den Schreinern direkt auf der Baustelle von Hand aus Teakholz gefertigt. Die spiegelblank polierten Steinböden reflektieren das Licht in den Innenräumen und erzeugen so einen leuchtenden Kontrapunkt zum Mauerwerk. Die Architektur gibt sich einem Spiel kinetischer Energie hin und lässt flüchtige Einblicke in das Treiben auf der Straße wie auch die Aktivitäten im Innern zu.
vir.mueller architects