Hamburger Bestattungsforum Ohlsdorf

Dohse Architekten und tsj Architekten

Hamburger Bestattungsforum Ohlsdorf

Besinnung auf den Ursprung

Bei der Erweiterung und Sanierung des Hamburger Baudenkmals stand ein zentraler Aspekt im Fokus: die Nähe zum Originalentwurf.

 

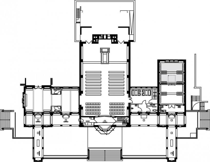
Das Neue Krematorium Ohlsdorf in Hamburg, 1932 von Fritz Schumacher gebaut, ist geprägt durch seine hoch aufragende Feierhalle. Freitreppen verbinden den Bau mit dem Friedhof. Das denkmalgeschützte Ensemble befand sich in einem schlechten Zustand. Der Bauherr beabsichtigte, mit modernem Bestattungs-Konzept ein Bestattungsforum zu eröffnen. Dafür wurde ein Neubau an den Altbau gesetzt und das Gesamtgebilde neu organisiert.

Dohse Architekten erstellten ein umfassendes Gutachten zum Zustand des Schumacher-Baus und ein Leistungsverzeichnis. Beides diente als Basis für ein Bieterverfahren. Die darin veranlassten Sanierungsarbeiten sollten möglichst den Originalzustand wieder sichtbar machen. Die Arbeiten erfolgten in enger Abstimmung mit der Gesamtplanung des Generalübernehmers und tsj Architekten. Die Innenausstattung erfolgte unter Verwendung originaler aufgearbeiteter Materialien sowie behutsam eingesetzter moderner Materialien. Besonderes Augenmerk erhielt die Gestaltung der großen Feierhalle (Fritz-Schumacher-Halle).

Die große Feierhalle war ursprünglich mit Backsteinen gedeckt. Schumacher verfolgte die Absicht, eine monolithische Anlage mit dem „durchs Feuer gegangenen Stein“ zu erstellen. 1966 wurde eine erste Sanierung des Daches ausgeführt, mit Aufbringung einer Kupferbekleidung auf das Dachmauerwerk. Diese Sanierung war jedoch nicht von Dauer. Durchfeuchtungen versetzten das Gebäude fast in einen baufälligen Zustand. So war zu Planungsbeginn offen, ob das Denkmal überhaupt erhalten werden konnte. Nachdem man sich grundsätzlich für die Sanierung entschieden hatte, stand die Gestaltung der Dachsanierung im Mittelpunkt der Diskussionen.

Zur Wiederherstellung des originalen Backsteindaches entwarfen Dohse Architekten ein Konzept für ein zweischaliges Dach mit Abdichtungsebene als wasserführende Schicht und eine Bekleidung mit eigens entwickelten Beton-Mauerwerk-Fertigteilelementen. Ziel war, eine konstruktiv einwandfreie Abdichtungsebene mit allen Anschlüssen zu entwickeln und gleichzeitig durch eine detaillierte Planung von Beton- Fertigteilen mit fest einbetoniertem Mauerwerk die Optik des Schumacher-Dachs wiederherzustellen.

Die Fertigteile wurden vor Ort verfugt, die Anschlüsse der Verglasung schlagregendicht ausgeführt. Sehr komplex erwies sich die Ausführung von Lüftungsschlitzen als Zwischenraum zwischen Schutz- und Bleiverglasung und zur Versorgung der Halle mit Frischluft. Der umgestaltete Warteraum gliedert sich in zwei Bereiche. Stark reduzierte Farbigkeit erhöht den Kontrast zu der durch farbige Bleiverglasungen geprägten Halle. Die Fenster erhielten rekonstruierte Vergitterungen. Die entnommenen Bleiverglasungen wurden im Kolumbarium eingesetzt, die Fenster an der Südseite ergänzt. Die kleine Feierhalle wurde zum Kolumbarium umgestaltet; mit Urnenregalen aus gekalkten Eichenplatten mit Fronten aus Glas bzw. hellem portugiesischem Kalkstein. Eine Gitterwand gibt den Eindruck eines geschützten Raumes. Die großen Fenster an der Westseite erhielten einen „Farbfilter“.

 

Altbau: Dohse Architekten
Neubau und Gesamtkonzeption: tsj Architekten

City
Hamburg Ohlsdorf, Deutschland
Client
Hamburger Friedhöfe AöR
Plot size
4.000.000 m²
Usable area
2.890 m² (sanierter Altbau) 4.896 m² (Alt- und Neubau)
Enclosed volume
14.112 m³ (sanierter Altbau) 19.584 m³ (Alt- und Neubau)
Construction time
2009 – 2011
Construction costs
10 Mio. EUR (Altbau)