Atelierhaus Dubsstrasse
Boltshauser Architekten AG

Hoffähiger Auftritt
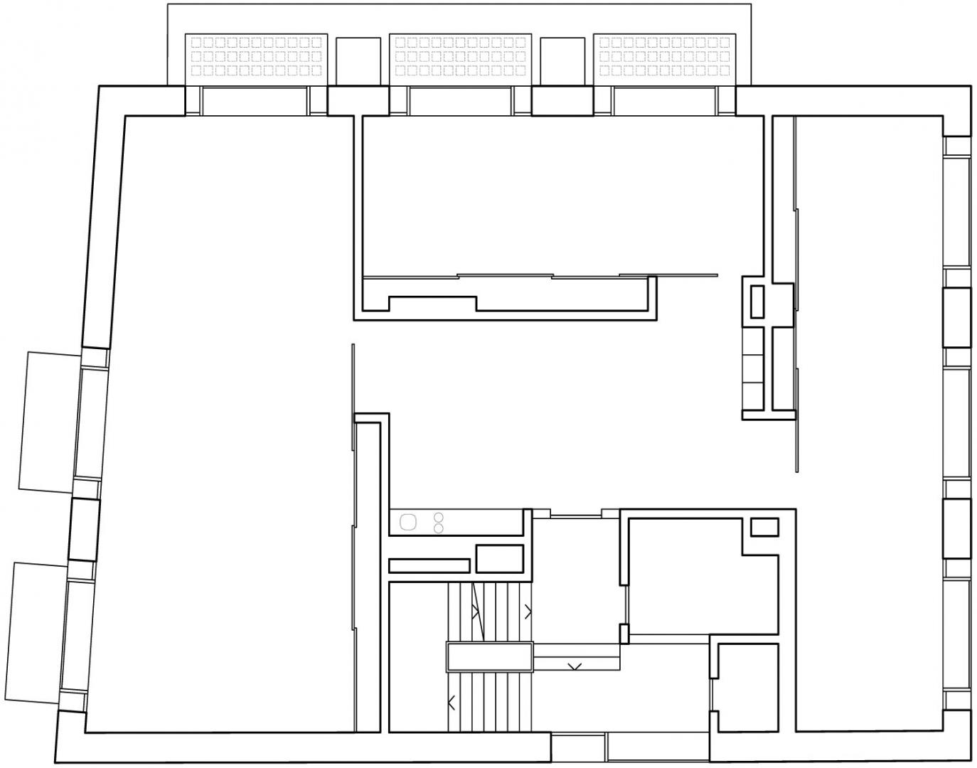
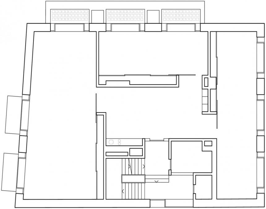
Im Hinterhof einer Blockrandbebauung präsentiert sich das neu gestaltete Atelierhaus mit kraftvoller Präsenz und differenziert sich selbstbewusst vom Bestand.
Das zweigeschossige Hinterhof-Gewerbehaus wurde bereits um die Jahrhundertwende zusammen mit den umgebenden Wohnhäusern des Blockrandes gebaut. Beim Umbau zum Atelierhaus wurde der Rohbau freigelegt, ausgebaut und neu umhüllt. Dort, wo sich der Blockrand zwischen zwei Häusern öffnet, gelangt man zur Eingangsseite des Hofhauses. Die Backsteinmauer ragt bei der Eingangsfassade geschlossen auf, lediglich ein „Portal“ sitzt in der Fläche, mit der Eingangstür und je einem Fenster unten und oben. Über die übrigen drei Seiten des Baukörpers laufen breite Betonbänder und rahmen die Fenster ein. Die Fenster oben sind etwas schmaler und höher, unten breiter und niedriger.
Betritt man das Innere, so löst sich die Kraft der äußeren Erscheinung in räumliches Wohlgefallen auf. Mit Erde ist hier alles überzogen: Böden, Wände, Decken. Hinter der Eingangstür und auf dem oberen Podest empfängt ein „Teppich“ aus ornamentierten Fliesen die Besucher. Die treppenbegleitende Stampflehmwand zeigt das Material in seiner ursprünglichsten Verarbeitungsform. Hier ist zu sehen, woraus die schönen und unaufdringlichen Oberflächen entstanden sind.
Boltshauser Architekten