Haus Stein
Jan Rösler, Sven Rickhoff
Mehr Sein als Schein
Unter Wahrung seines ursprünglichen Erscheinungsbildes wurde der einstmals landwirtschaftliche Zweckbau einer neuen Bestimmung zugeführt.

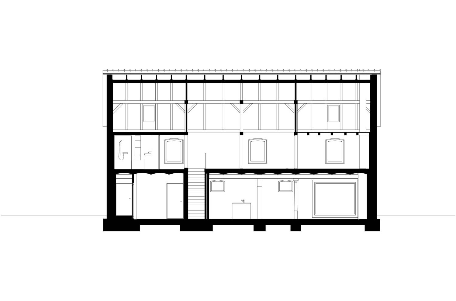
Haus Stein ist die Umnutzung einer Backsteinscheune aus den 1930er-Jahren zu einem Ferienhaus. Architektonisches Grundkonzept ist der Erhalt des äußeren Erscheinungsbildes und des Grundcharakters des Gebäudeensembles. Die behutsam durchgeführten Eingriffe an der Fassade sind bei Abwesenheit der Nutzer nicht gleich zu erkennen. Erst wenn die hölzernen Läden und Tore geöffnet werden, zeigt sich das Innere in seiner neuen Erscheinung und bildet mit der präzisen Ausführung einen bewussten Kontrast zum rauen, unbearbeiteten Äußeren. Bei Abwesenheit verwandelt sich das Wohnhaus wieder in die Scheune.
Die innere Organisation wird durch die Stahlträger der preußischen Kappendecke gegliedert. Nach ihren Positionen verlaufen die Raumaufteilungen und Öffnungen in der Decke. Die Nutzung ist in zwei grobe Bereiche aufgeteilt. Während das untere Geschoss mit etwas „härteren“ Materialien und Farbgebung eher der Tagesnutzung vorbehalten ist, befinden sich im oberen Geschoss die ruhigeren Räumlichkeiten. Hier ist ausreichend Platz vorhanden, um sich trotz der Offenheit des Gebäudes zurückzuziehen.
Soweit es technisch möglich war, wurden nachhaltige Baumaterialien eingesetzt. Dies z. B. in Form einer Holzweichfaserinnendämmung, Flachsdämmung im Dach sowie Lehmputz an den Wänden. Eine PV- und Solarthermische Anlage auf dem Grundstück in Verbindung mit einem Windkraftgenerator sorgt für eine gewisse Unabhängigkeit. Die Bauarbeiten wurden zum überwiegenden Teil durch die an das Planungsbüro angegliederte Baufirma umgesetzt. Ebenso hat die Eigenleistung der Bauherren zu einer kostengünstigen und präzisen Umsetzung der Planung beigetragen.
Jan Rösler, Sven Rickhoff