Akazienstraße
BSP Architekten BDA

Wasserlinie als roter Faden
Im Zuge einer Nachverdichtung wurde in einer vorhandenen Siedlungsstruktur in zentraler Lage in Büdelsdorf Wohnraum geschaffen, der im Wesentlichen für ein älteres Klientel bestimmt ist. Um dieser Altersgruppe adäquate und bezahlbare Wohnungen zu bieten, wurden zwei bestehende Gebäude mit 20 Wohneinheiten aus den 1950er-Jahren abgerissen. Dort entstanden insgesamt fünf Gebäude mit 43 Wohneinheiten.
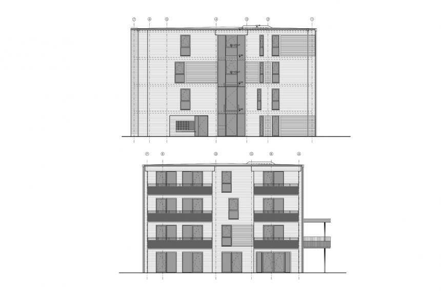
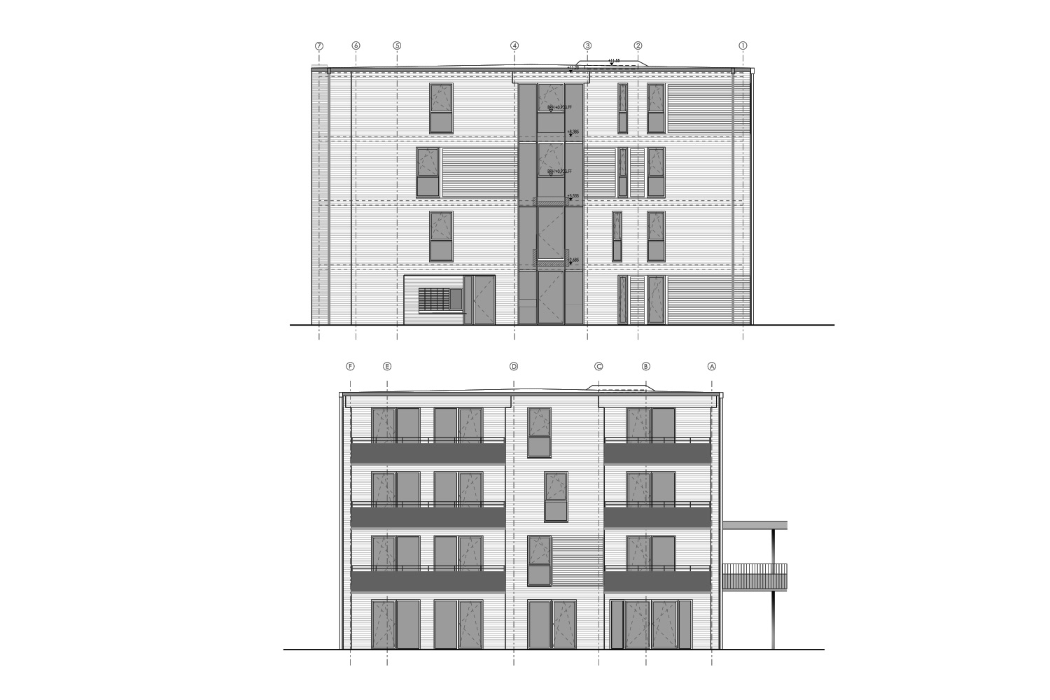
Die neuen Gebäude reihen sich mit einer differenzierten Höhenentwicklung in die heterogene angrenzende Bebauung ein, die von viergeschossigen Mehrfamilienhäusern bis zu kleinteilig zerstreuten Einfamilienhäusern ein breites Spektrum von Wohnformen aufzeigt. Die Neubauten orientieren sich an einem neuen langgestreckten Innenhof. Prägendes Element ist hier eine künstliche Wasserlinie, die sich in der gesamten Länge durch den Hof zieht. Weitere Themenbereiche sind Hochbeete, Kräutergärten und eine Uferzone aus Schilfgras, die für ein angenehmes Mikroklima und eine zusätzliche Belebung des Innenhofes sorgen.
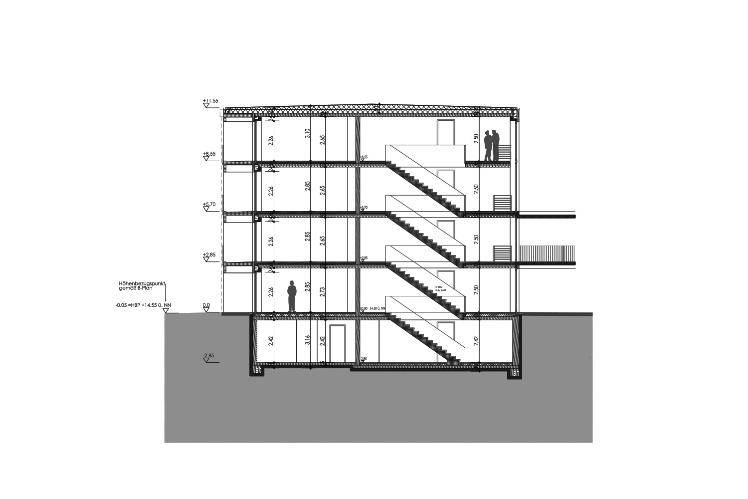
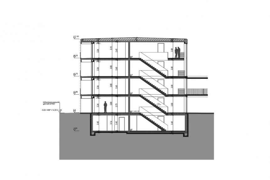
Die Zwei- und Drei-Zimmer-Wohnungen, teilweise öffentlich gefördert, werden ausschließlich über den Innenhof und die Laubengänge erschlossen. Alle Wohnungen verfügen über Balkone oder Terrassen. Breite Laubengänge bieten den Bewohnern Raum für gemeinsame Treffen und fördern dadurch die Kommunikation. Der Aspekt des Durchwohnens und die Anordnung der Freiräume zum Innenhof und der privaten Rückseite verleihen den Wohnungen eine hohe Qualität.
Zwei Brücken verbinden die Laubengänge, gliedern den Freiraum in seiner Länge und verbinden die zwei Gebäudezeilen zu einer Einheit. Über die Laubengänge sind alle Wohnungen barrierefrei erreichbar, obgleich die Anlage nur über zwei Aufzüge verfügt. Ein Gemeinschaftsraum, ein Nachbarschaftscafé, eine Gästewohnung sowie gemeinschaftliche Waschräume im Keller ergänzen das Raumangebot.
Die Wohnanlage mit ihren Laubengängen und den belebten Innenhof sollte für die Bewohner eine hohe Aufenthaltsqualität erhalten. Dadurch war ein warmes Material für die Fassade gesetzt. Die Wahl fiel auf einen hellgelben Wasserstrichziegel in Normalformat, der im wilden Verband verarbeitet und mit einer grauen Fuge geschlossen wurde. Die Fassaden wurden in Einzelflächen mit verspringenden Steinschichten aufgelockert. Weitere gliedernde und gestaltende Elemente sind die holzbekleideten Treppenhäuser und Zwischenbauten.
BSP Architekten BDA