Multikonfessionelle Aussegnungshalle
Marius Westermann

Spiegelbild der Gesellschaft
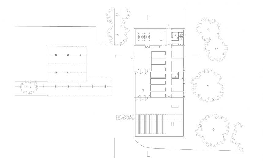
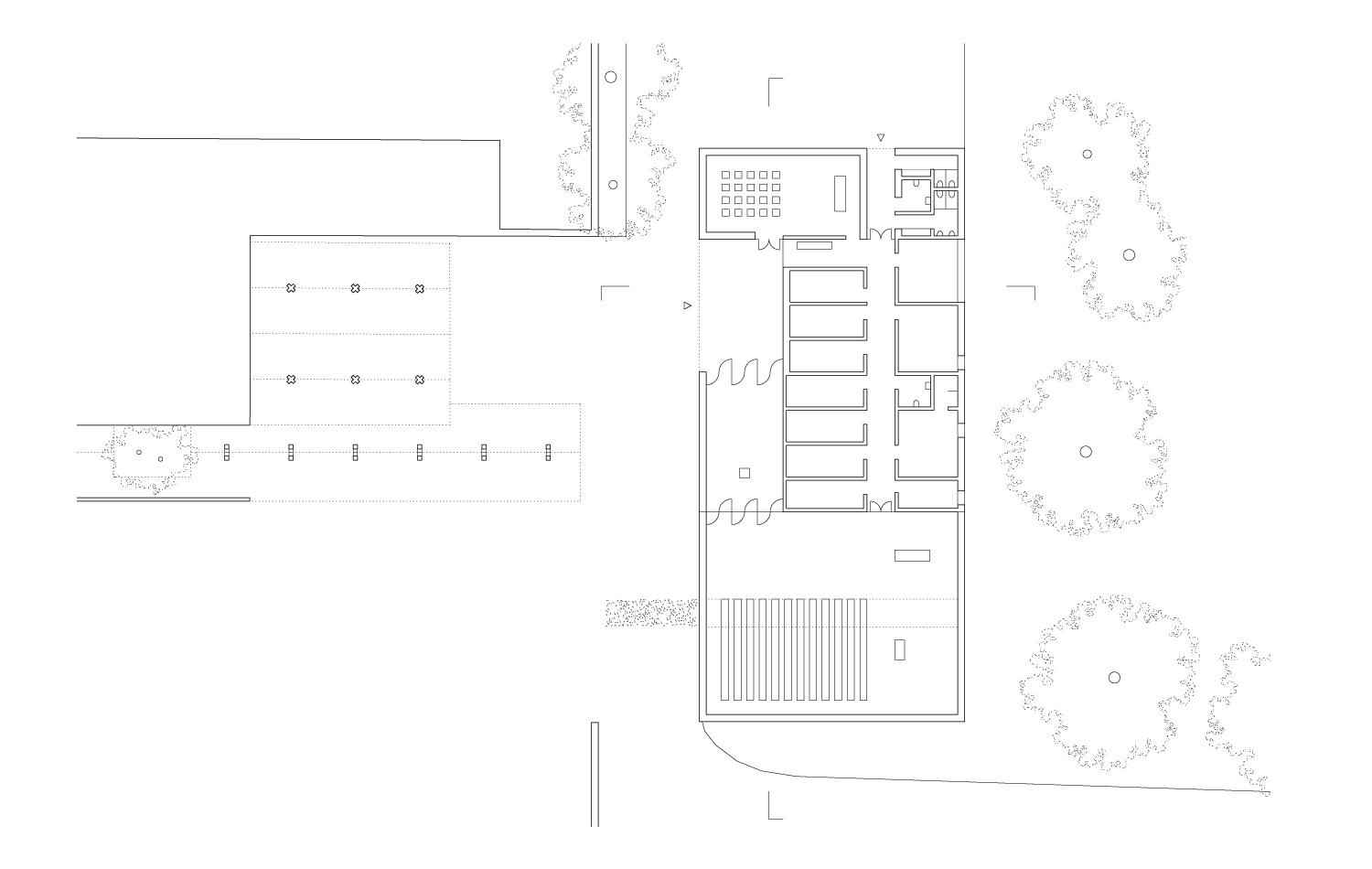
Der Zentralfriedhof Melaten, dessen Geschichte bis ins 12. Jahrhundert zurückreicht, ist Kölns größter städtischer Friedhof und Spiegelbild einer pluralistischen Gesellschaft. Auf dem 435.000 m² großen Grundstück liegen Menschen unterschiedlicher Konfessionen und sozialer Schichten begraben. Aufgabe war es, für den Friedhof eine multikonfessionelle Aussegnungshalle zu der bestehenden christlichen Trauerhalle von Fritz Schaller zu entwerfen.
Für den Entwurf wurde ein Grundstück gewählt, das außerhalb der Friedhofsmauern doch in unmittelbarer Nähe zur vorhandenen Trauerhalle liegt. Die zentrale Frage, die sich mir stellte, war: Wie sieht eine multikonfessionelle Aussegnungshalle aus? Obwohl der Bau für die verschiedenen Zeremonien frei von konfessionsgebundenen Symbolen und Bauformen sein muss, ist mir wichtig, dass dieser außen über die Formsprache und innen über die Lichtwirkung als Sakralbau erkennbar ist. Außerdem sollen die Räumlichkeiten den Trauernden Ruhe in dem lebendigen innerstädtischen Umfeld bieten, weshalb die Öffnungen in der Fassade nur auf das Notwendigste reduziert sind. Und auch wenn das Gebäude durch seine multikonfessionelle Nutzung an diesem Ort etwas Neues darstellt, soll es nicht den christlichen Bestandsbau negieren, sondern mit diesem interagieren.
Hierzu wird gelber Backstein verwendet und die vorhandene Schmetterling - Überdachung des Vorplatzes in der Dachform der neuen Aussegnungshalle thematisiert.
Marius Westermann