Changjiang Art Museum
Vector Architects

STILLER BEOBACHTER
Beständigkeit im hektischen Großstadtalltag: Das Changjiang Art Museum verbindet eine Kunstgalerie mit hoher Aufenthaltsqualität im öffentlichen Raum. Während das Gebäude an die Vergangenheit des Standortes erinnert, hat es gleichzeitig die gegenwärtigen Bedürfnisse der Menschen im Fokus.
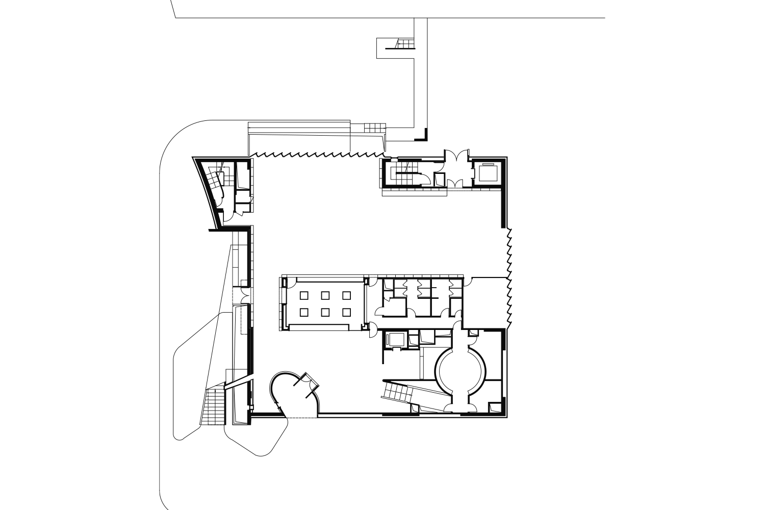
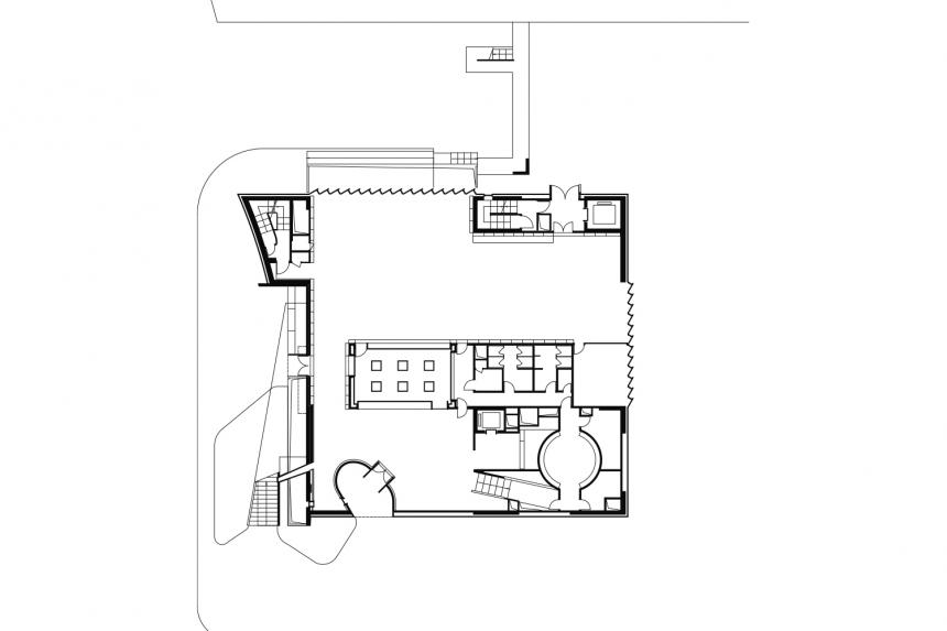
Das Changjiang Art Museum befindet sich im Nordosten von Taiyuan, der Hauptstadt der chinesischen Provinz Shanxi. Wie so viele andere chinesische Dörfer wurde auch das Dorf Changjiang 2016 abgerissen, um der rasanten Stadtentwicklung Platz zu machen. Mit der Zerstörung wurde der Ort auch seines räumlichen Kontextes beraubt, der die Inschrift des Alltagslebens der Menschen trug. Als ein kultureller und gemeinschaftlicher Raum, der öffentlich zugänglich ist, füllt das Changjiang Art Museum diese Lücke mit einer zeitgenössischen Antwort. Es erinnert an die Spuren und die Atmosphäre der menschlichen Konstruktionen, die einst auf diesem Stück Erde existierten. Das Museum befindet sich am südlichen Rand einer neu errichteten Wohnsiedlung, die an den Stadtgürtel angrenzt. Eine der wichtigsten Aufgaben des Museums ist daher, als Bindeglied zwischen der Gemeinde und der Stadt zu fungieren. An der südwestlichen Ecke des Gebäudes führt eine Außentreppe von der Straße durch das Museum auf eine offene Terrasse. Die Terrasse im zweiten Obergeschoss bildet einen erhöhten Platz, in dessen Mitte sich ein mit Bäumen bepflanzter Innenhof befindet. Dieser Raum kann für öffentliche Aktivitäten genutzt werden und ist über eine Fußgängerbrücke mit dem Wohngebiet auf der anderen Straßenseite verbunden. Die äußere Querverbindung ist für die Öffentlichkeit zugänglich und unabhängig von der Route durch das Museum. Brücke wie Terrasse können von Besuchern und Anwohnern genutzt werden.
LICHTDURCHFLUTETER ANKERPUNKT
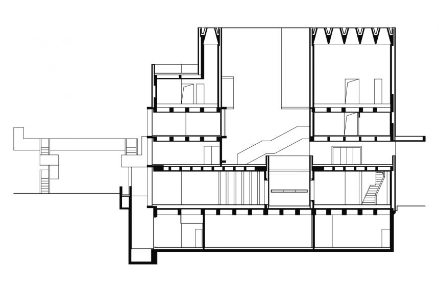
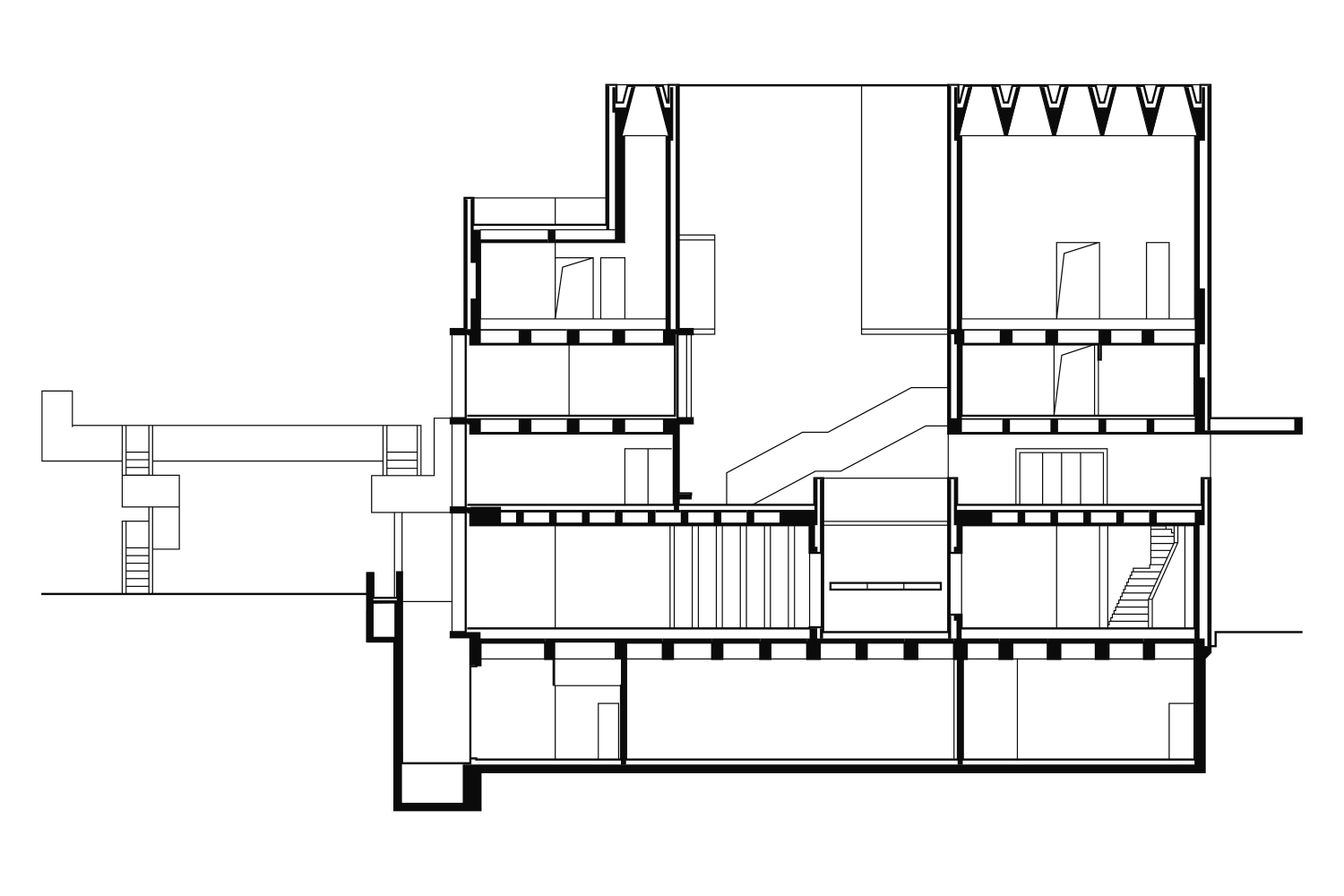
Die Galerien des Museums sind um einen Lichtschacht mit einem Durchmesser von 5,7 Metern und einer Höhe von 16,4 Metern angeordnet, der als organisierender Anker für alle Räume dient. Das runde Atrium ist sowohl der Start- als auch der Endpunkt. Die Besucher starten im unteren Bereich, gehen von dort die Wendeltreppe empor, die sich zu den Galerien hinaufschlängelt, und beenden den Rundgang schließlich, indem sie von der obersten Galerie entlang des Treppenschachts wieder zum Ausgangspunkt hinuntersteigen. Öffnungen auf den Ebenen erlauben immer wieder einen Blick auf das zentrale Lichtatrium. Ins Innere der Galerien dringt natürliches Licht, das zunächst durch die Dachfenster gefiltert und abgeschwächt wird und anschließend durch eine offen gestaltete Betondecke fällt, deren Raster aus Quadraten mit einer Seitenlänge von 1,9 Metern besteht. Der Innenraum wird so mit einer homogenen und immersiven Lichtqualität gefüllt. Die Außentreppe, die das zweite mit dem vierten Obergeschoss verbindet, das vorspringende Eckfenster im vierten Obergeschoss und ein nach Südwesten ausgerichtetes vertikales Fenster im selben Stockwerk bieten den Museumsbesuchern Ausblicke auf das heutige Stadtbild von Taiyuan.
Das Changjiang Art Museum ist wie ein massiver Backstein-Block: Er nimmt bestimmte Raum-Zeit- Koordinaten ein, während er still und aufmerksam Zeugnis von der lauten und sich ständig verändernden Stadt um ihn herum ablegt.
Vector Architects