Feuerwehr Tuttlingen
Georg Scheel Wetzel Architekten

Zurückhaltende Eleganz
Zusammenhängende Backsteinflächen betonen den ruhigen Charakter des Feuerwehrgebäudes, Fassadenöffnungen mit Stahl- und Glaselementen die räumliche Tiefenstaffelung.
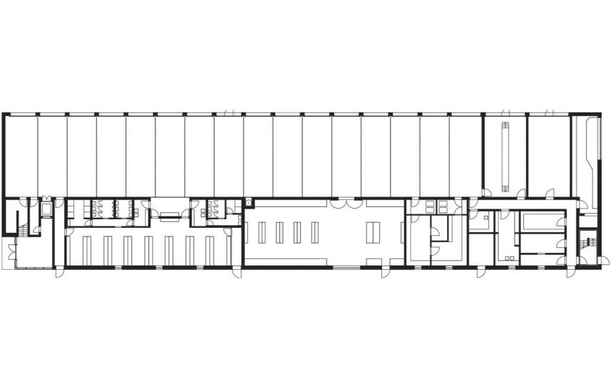
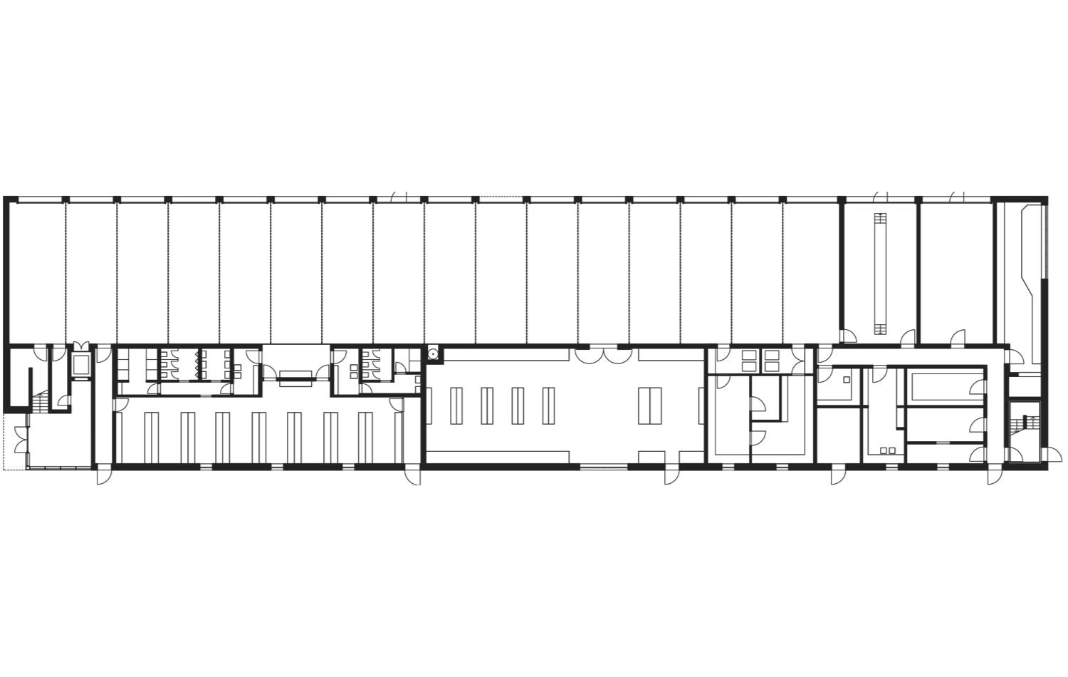
Das neue Feuerwehrgebäude ordnet sich mit einem einfachen, längs gerichteten Bauvolumen in den städtebaulichen Kontext vorstädtischer Gewerbebauten ein und tritt in räumliche Beziehung zum parallel stehenden Polizeigebäude auf dem Nachbargrundstück im Westen. Nach außen hin tritt es durch einen offenen Vorplatz, etwas von der Straße abgerückt, mit seiner transparent einsehbaren Fahrzeughalle weithin sichtbar in Erscheinung und bildet so einen angemessenen baulichen Auftakt am Stadteingang von Tuttlingen. Die vielfältigen Gebäudefunktionen der Feuerwehr werden in ein geometrisch reduziertes, zweigeschossiges Baukörpervolumen integriert. Dabei werden architektonische Ausdrucksformen, die diese einfache Gebäudedisposition verunklären könnten, bewusst vermieden.
Das Haus ist mit soliden, wertbeständigen Materialien gebaut und besitzt eine dauerhafte Fassade aus hart gebranntem Backstein. Der Stein ist nicht rot, sondern in einem farblich changierenden, anthrazitgrauen Farbspektrum gehalten, um ein architektonisches Passepartout für die roten, in Reihe stehenden Einsatzfahrzeuge zu bilden. Die homogene Gestaltung verschafft dem lagernden Gebäude eine angemessene Präsenz im Stadtraum und strahlt eine zurückhaltende Eleganz aus. Das Gebäude wird als ganzheitlich gemauertes Volumen aufgefasst, das mit einem im Kreuzverband gemauerten Backstein einheitlich materialisiert wird. Neben der gestalterischen Qualität waren auch Aspekte der Langlebigkeit und der Alterungsfähigkeit für die Materialwahl maßgeblich. Der ruhige Charakter des Gebäudes wird durch große zusammenhängende Klinkerflächen gestärkt, in die große Fassadenöffnungen volumetrisch eingeschnitten werden.
Die hier eingesetzten, fein gegliederten Stahl- und Glaselemente erzeugen eine weitere Differenzierung mit räumlicher Tiefenstaffelung. Der Backstein mit seinem fein nuancierten Farbspiel, das durch den natürlichen Wechsel von Absorption und Reflexion des Lichts auf der Klinkeroberfläche entsteht, bildet einen spannungsvollen Kontrast zu den großen Fassadenöffnungen, die den Fokus auf Eingangsfoyer und Übungstreppe lenken. Die Lagebestimmung des Bauvolumens auf dem Grundstück sowie die Verteilung der Raumbereiche innerhalb des Gebäudes werden neben städtebaulichen Prämissen vor allem durch die betrieblichen Abläufe und Zielsetzungen der Feuerwehr bestimmt: Der längs gerichtete Baukörper gliedert die Grundstücksfläche in zwei Bereiche, die im Süden des Geländes miteinander verbunden sind. Die Alarmzufahrt mit Alarmparkplatz ist auf der westlichen Grundstücksseite angeordnet. Auf der östlichen Seite befindet sich die Alarmausfahrt mit den zugeordneten 16 Fahrzeugboxen. Im Süden schließt ein 15 Meter hoher Übungs- und Schlauchturm als integraler Bestandteil die Gebäudefigur ab.
Georg Scheel Wetzel Architekten GmbH