Wohnhaus Prenzlauer Berg

Barkow Leibinger

Wohnhaus Prenzlauer Berg

DIE PYRAMIDE VOM PRENZLAUER BERG

Das Apartmenthaus mit seinem steil aufragenden Dach und seiner vielfarbigen Backsteinfassade wirkt im Berliner Bezirk Prenzlauer Berg zugleich archaisch und modern, handwerklich und industriell.

 

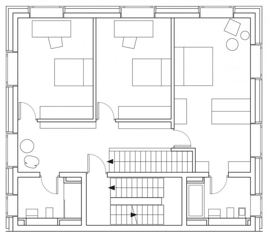
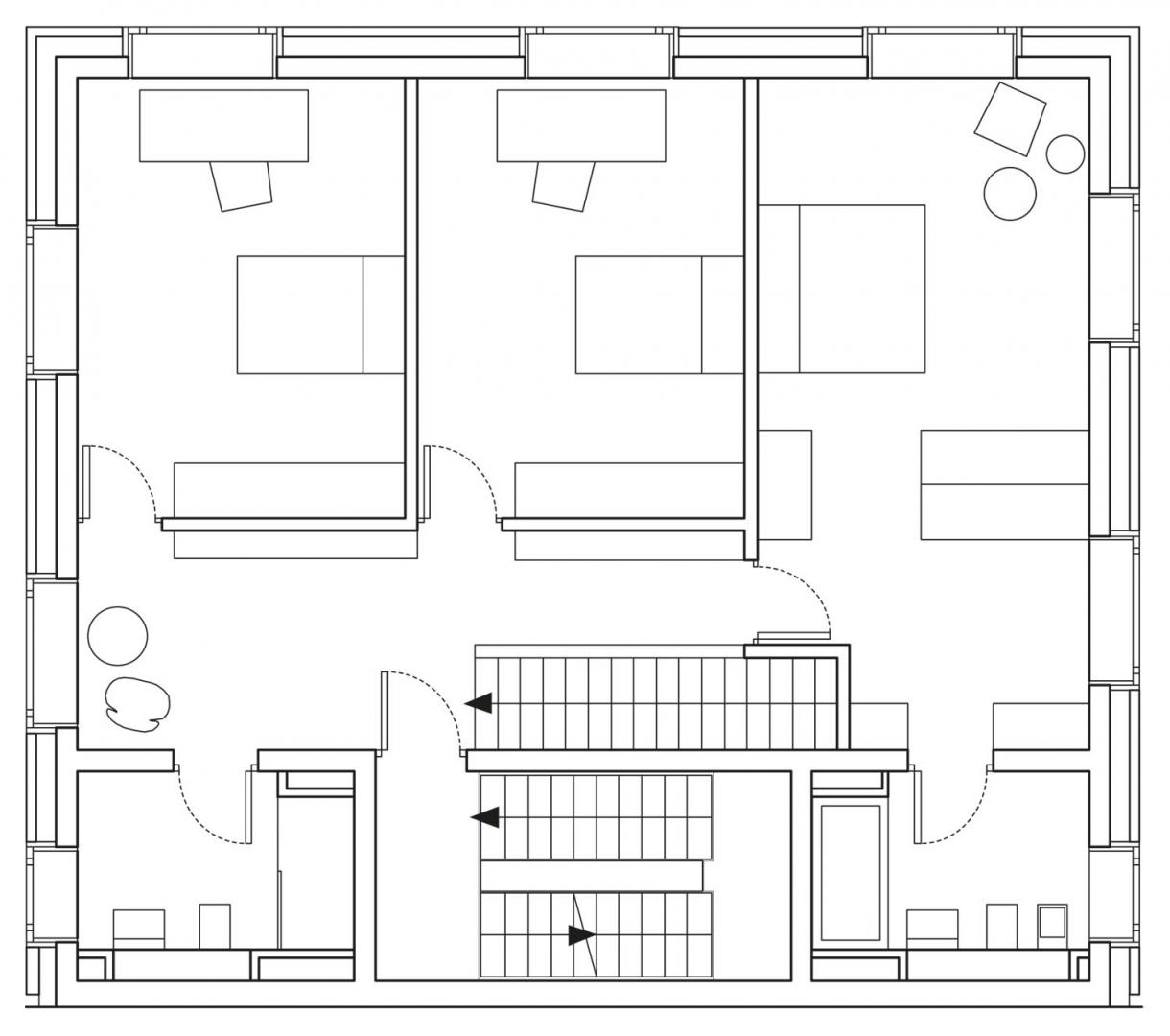
Versteckt im Innenhof einer gründerzeitlichen Blockrandstruktur in Berlin entstand ein ungewöhnliches Haus mit zwei als Maisonetten organisierten Wohneinheiten: Mit einem steil aufragenden, gut 10 Meter hohen Dach, mehr Pyramide als Kubus, ist der eigenwillig geformte Baukörper vollständig von einer farblich changierenden Ziegelhaut überzogen. Unregelmäßig proportionierte Fenster mit Aluminiumrahmen erinnern an die oft industriell geprägte Nutzung der Blockinnenbereiche des Stadtbezirks zu ihrer Entstehungszeit. Die Erscheinung des Hauses passt auf den ersten Blick nicht in die gängige Vorstellung des kontextbezogenen Weiterbauens und ist dennoch unmittelbares Resultat enger baurechtlicher und denkmalpflegerischer Rahmenbedingungen. Kreativ als Entwurfswerkzeuge genutzt, führten diese zu einem Gebäude, das zugleich vertraut und fremd erscheint, sich in seine Umgebung einfügt und dennoch einen starken eigenständigen Charakter besitzt.

Bei der Entwicklung des Nachverdichtungskonzepts war zunächst zwischen zwei widersprüchlichen Positionen zu vermitteln: Die Denkmalschutzbehörde wünschte sich einen Neubau in der Kubatur des im Krieg zerstörten ursprünglichen Quergebäudes, was die Bauaufsicht aber aufgrund der heutigen Abstandsflächenregelungen verwehrte. Die Lösung war ein extrem tief ansetzendes Dach mit einer Traufhöhe von nur ca. 7,50 m. Mit einer Neigung von knapp unter 70 Grad zieht es sich über drei Geschosse bis zur Gebäudeoberkante von ca. 18 m, wo eine Aufdachterrasse gewissermaßen die Pyramidenspitze kappt. Das Ergebnis ist eine Kubatur, die an die typische Hausform vieler Kinderzeichnungen erinnert. Mit seinem Rücken schließt das annähernd quadratische Haus wie sein Vorgängerbau bündig an die Brandwand des benachbarten Quergebäudes an. Eine Schattenfuge unterstreicht dabei die Unabhängigkeit des Neubaus.

 

Barkow Leibinger

City
Berlin, Deutschland
Client
Privat
Architect
Barkow Leibinger
Plot size
690 m²
Built-up area
155 m²
Usable area
547 m²
Enclosed volume
2.578 m³
Construction time
2015 – 2016