Adickesallee
Stefan Forster Architekten

Verweis auf die Industriearchitektur
Mit seiner neutralen Rasterstruktur nimmt das Appartementhaus die Formensprache seiner Umgebung auf. Die Backsteinfassade erinnert auch an die Architektur der Neuen Sachlichkeit.
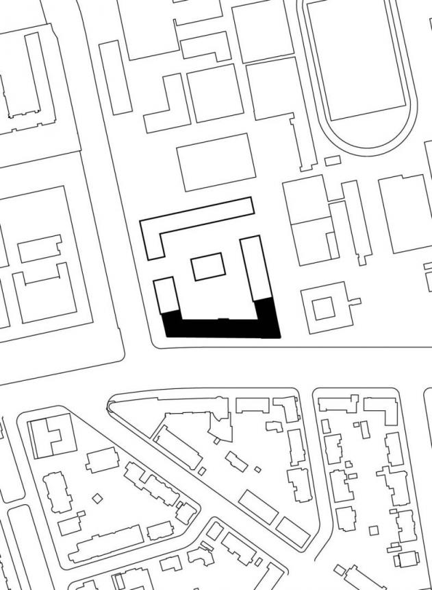
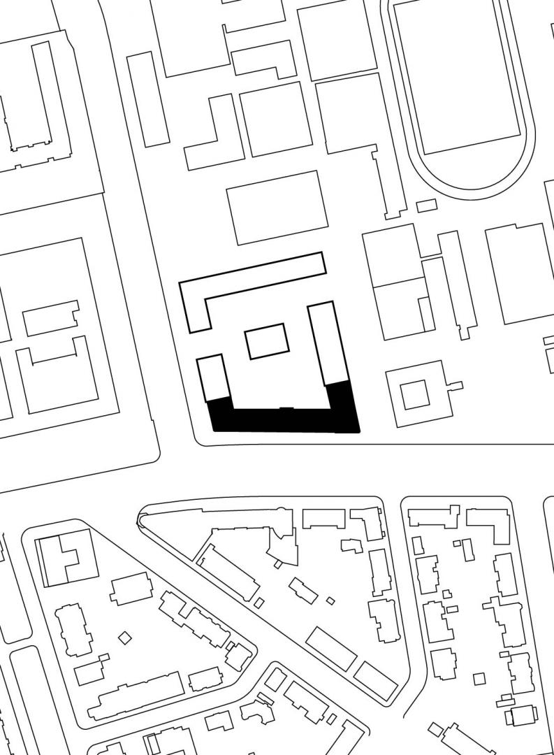
Das Gebäude für Studierende und Berufstätige steht an der vierspurigen Adickesallee zwischen dem Polizeipräsidium und dem Neubau der Frankfurt School of Finance and Management. Städtebaulich markiert der sogenannte Alleenring an dieser Stelle den Übergang von der historischen Blockrandbebauung zu einer offeneren Bebauung. Der Neubau ersetzt eines der letzten verbliebenen baulichen Relikte aus der Nachkriegszeit, als Frankfurt kurzzeitig als Hauptstadt der Bundesrepublik im Gespräch war – das ehemalige Landwirtschaftsministerium. Anstelle der ehemals offenen Bebauung entsteht nun ein städtischer Blockrand mit einer eindeutigen Raumkante zum Alleenring. Die Großform des Hauses bezieht sich auf das westlich gelegene Polizeipräsidium und die östlich anschließende Frankfurt School of Finance and Management. Mit der Übernahme der großmaßstäblichen Dimensionen seiner Nachbarbauten wird auch deren Typologie – eine robuste, neutrale Rasterstruktur – fortgeführt.
Die differenziert profilierte Klinkerfassade stellt Beziehungen zu vertrauten Vorbildern aus der Baugeschichte her und vermeidet bewusst jeglichen Hinweis auf die Funktion des Hauses. Seine Formensprache erinnert eher an großmaßstäbliche Industriegebäude aus dem letzten Jahrhundert. Die Fenster sind durch Faschen gerahmt und schmale Gesimse betonen die horizontale Gliederung. Der zweigeschossige Sockel ist stärker profiliert und durch ein kräftigeres Gesims von der restlichen Fassade abgesetzt. Die erhöhten Ecken betonen durch ihre unterschiedliche Höhe die jeweils differenzierte städtebauliche Situation. Auf die Strenge der Straßenfront antwortet die Rückseite mit einer aufgelockerten Fassade mit alternierend angeordneten und farblich abgesetzten Balkonen. Alle Appartements verfügen über französische Fenster oder Balkone und wirken entsprechend großzügig. Die Fassadengestaltung ist das Ergebnis der intensiven Abstimmung zwischen Architekten und Bauherr auf der einen und dem Stadtplanungsamt auf der anderen Seite.
Stefan Forster Architekten