Hofensemble in Rot
sabo Architekten

Schattenspiel trifft Monochromie
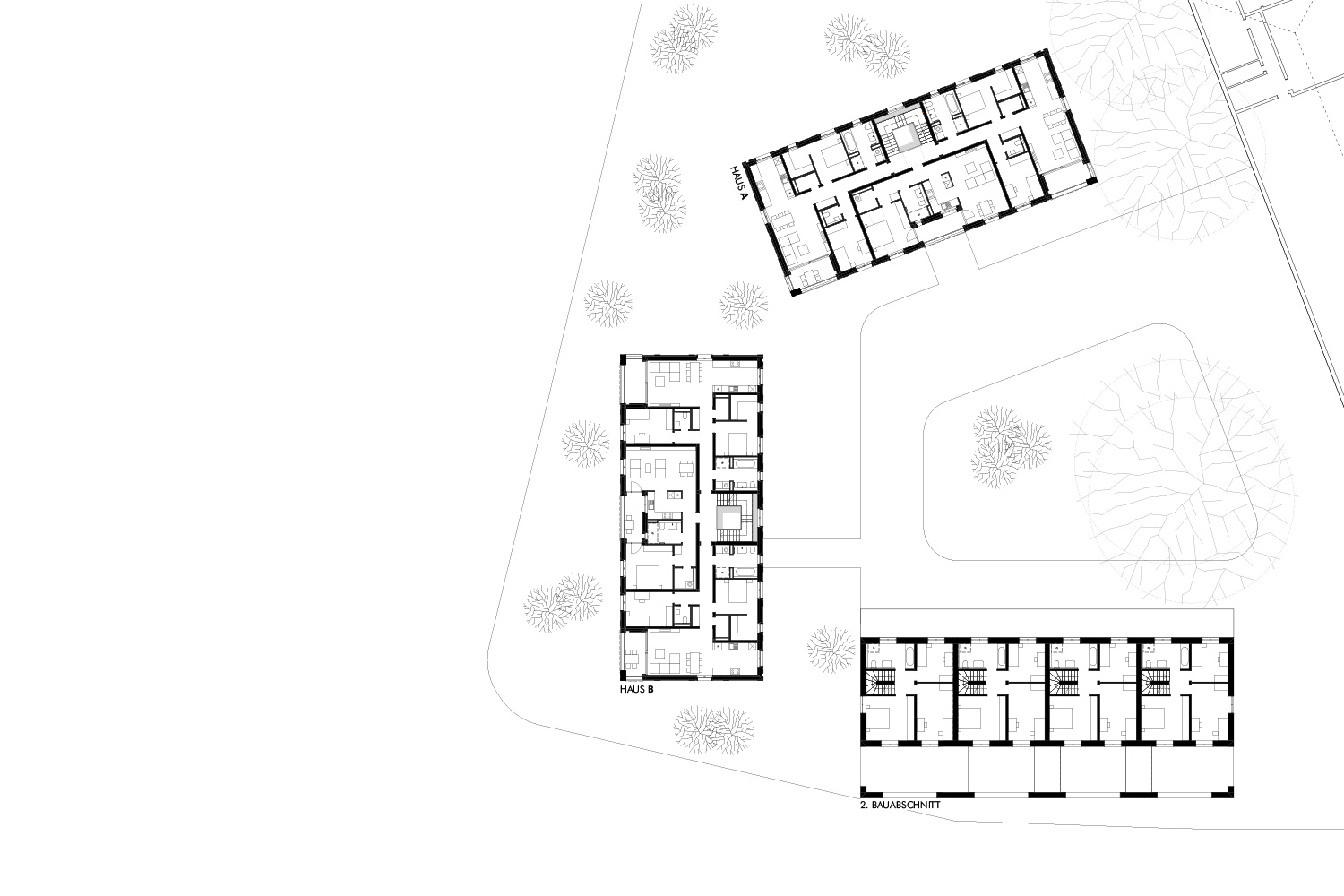
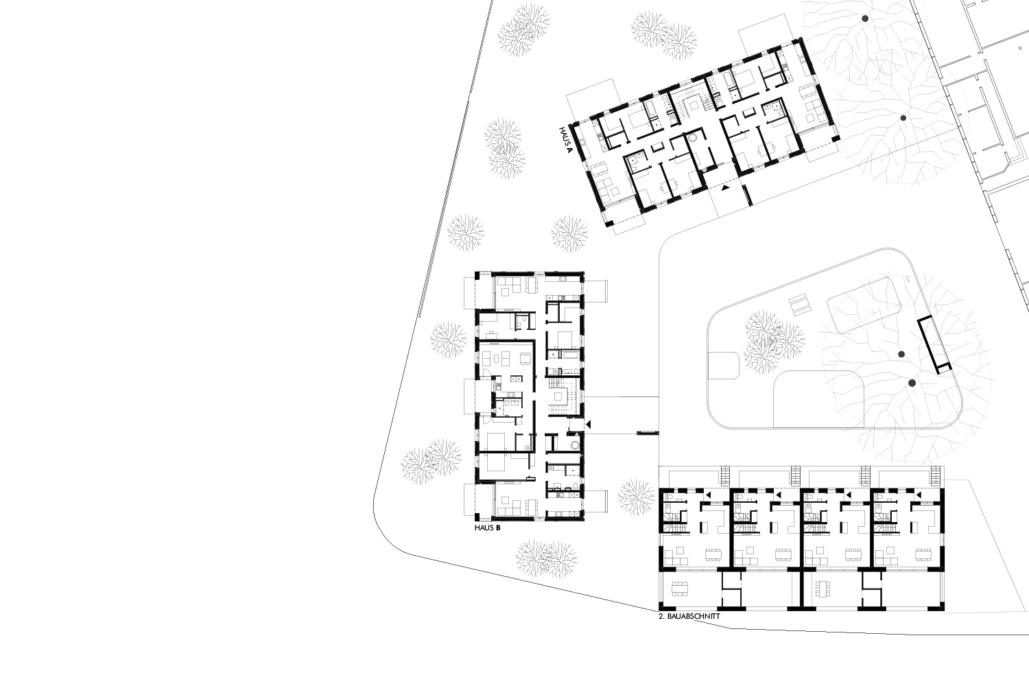
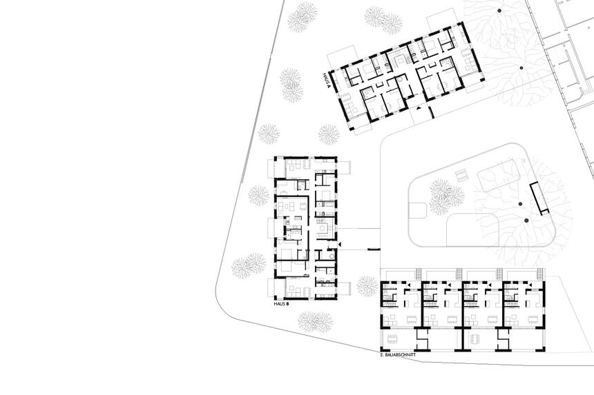
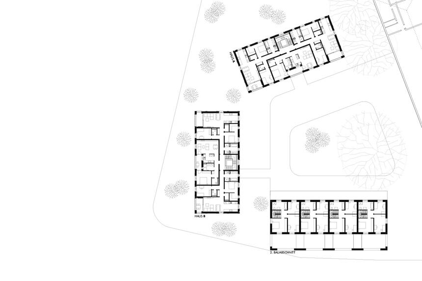
Eine Hofstelle im dörflich geprägten Stadtteil Bemerode wurde 2022 im Zuge der hochbaulichen Ergänzung in enger Abstimmung mit der Denkmalpflege um zwei ensembleartige Baukörper mit 15 Wohneinheiten erweitert und das vorgefundene Motiv des Hofs als grüner Mitte unter Einbeziehung des ortsprägenden Baumbestands neu interpretiert. Körnung, Dimension und äussere Gestalt der neuen Baukörper orientieren sich mit Blick auf die Homogenität der Gesamtanlage am Kontext der Bestandsscheunen mit geneigten Dächern, zur Aufwertung der Dachgeschosswohnungen mit feingliedrigen metallbekleideten Gauben erweitert. Strenge Gliederung der Fassaden und disziplinierte Anordnung der Fenster stehen im wohltuenden Kontrast zu den reliefartig profilierten Mauerwerksflächen, die sich über alle Fronten erstrecken und der Fassade ein anmutiges Schattenspiel und in Verbindung mit Loggien und Rücksprüngen Tiefe, Volumen und Kraft verleihen. Das als Läuferverband ausgeführte zweischalige Sichtmauerwerk wurde homogen zum rötlichen Klinker verfugt, Mauerabdeckungen und Fensterbänke als eingefärbte Betonfertigteile gestalterisch-konstruktiv in die Fassade integriert und Rinnen und Fallleitungen farblich passend ausgeführt. Kontrastierend dazu wurden Fenster und Geländer der Loggien in schwarzem Strukturlack angelegt.
Funktional-durchdachte und teils zum Durchwohnen konzipierte Wohneinheiten unterschiedlicher Größe, setzen den formulierten Gestaltanspruch innen konsequent fort. Loggien erweitern über großformatige Glasschiebeelemente den Innenraum, ermöglichen ausreichend Privatheit und sind witterungsunabhängig nutzbar. Haptische Bodenbeläge aus Eichenholz, eingefügte Möbel und Küchen sowie ein integrativ geplantes Lichtkonzept direkter und indirekter Beleuchtung schaffen Atmosphäre und bieten ein aufgeräumtes Wohnumfeld.
Ein angemessener und gleichwohl zukunftsorientierter Einsatz haustechnischer Anlagen mit thermischer Solarunterstützung und zentraler Wohnungslüftung ermöglicht mit Blick auf ausgewogene Mietkonditionen adäquate Investitions- und Unterhaltskosten in einem auch ästhetisch nachhaltigen Wohnensemble.
sabo Architekten