Stammhaus Fiege
Landheer Architekten

Typisch Westfälisch
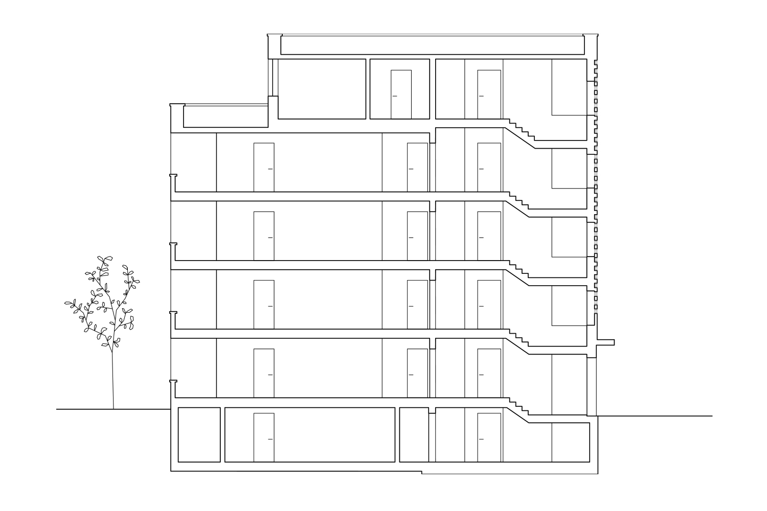
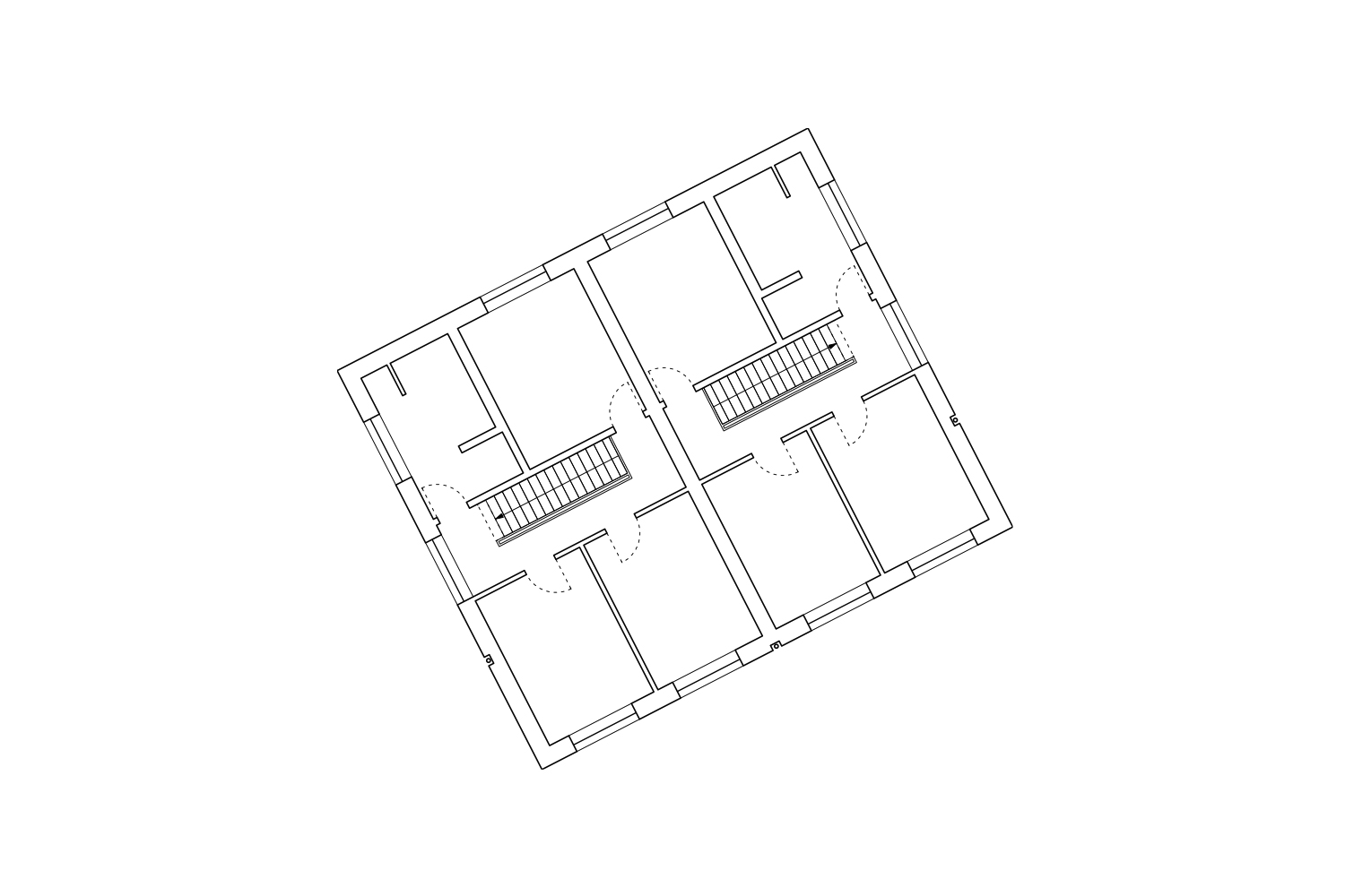
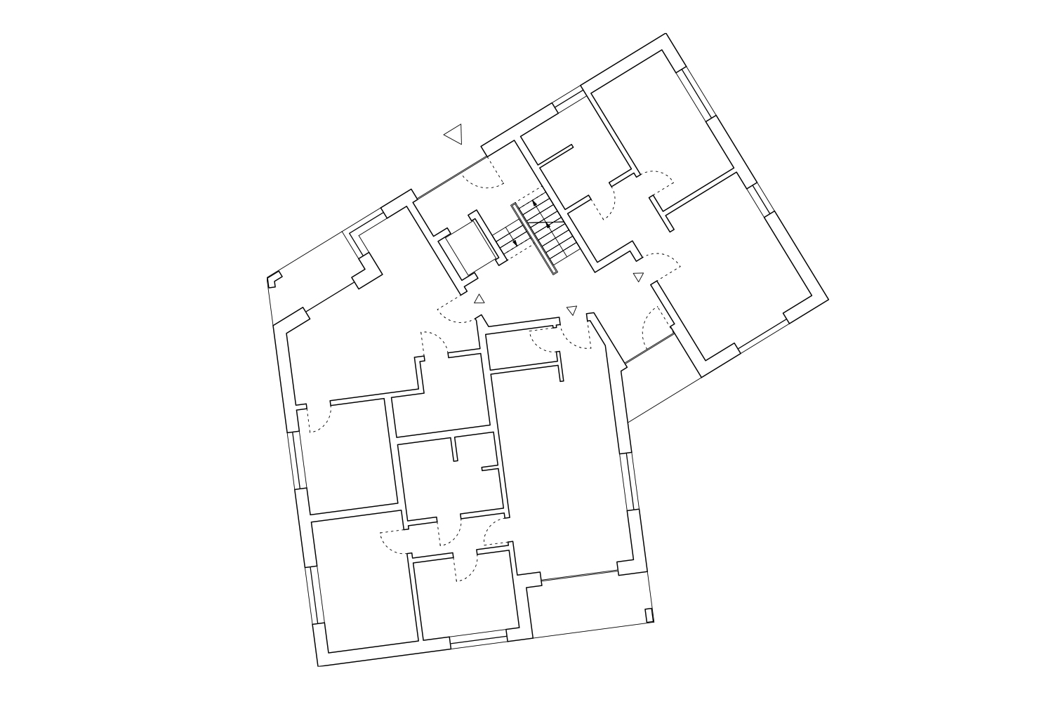
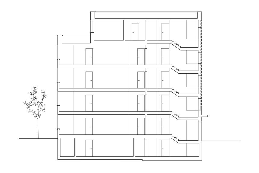
Im nördlichen Bereich zur Kreuzung entstand ein moderner fünfgeschossiger Baukörper, der sich durch seine polygonale Kubatur und Höhenstaffelung spielerisch in die Nachbarbebauung einfügt und den Kreuzungsbereich selbstbewusst städtebaulich neu definiert, fasst und belebt. Um der sozialen Verantwortung gerecht zu werden, wurde auf jedem Regelgeschoss eine öffentlich geförderte Wohnung realisiert. Die Wohnungen verfügen entweder über eine Terrasse oder eine Loggia, die teilweise über Eck geführt ist und somit das Gebäude mit der Umgebung verzahnt.
Im südlichen Teil des Grundstücks entstanden acht Mieteinheiten in vier zweigeschossigen Doppelhäusern mit einem flach geneigten Satteldach. Die traditionell wirkenden giebelständigen Doppelhäuser übernehmen die Gebäudekubatur der bestehenden Wohnbebauung und fügen sich städtebaulich logisch ein. Durch den typisch westfälischen roten Klinker und dem Dach mit dunkler Biberschwanzdeckung entsteht mit dem Bestand ein harmonisches Ensemble. Die Neubauten passen sich dem genius loci an, bilden neue städtebauliche Räume und definieren somit den Ort neu, sodass eine Identifikation der Bewohner mit dem Ort gegeben ist.
Im Luftbild lies sich erkennen, dass sich durch die Anwohner ein eigenes Pättken (westfälisch für Weg) als Abkürzung über das Grundstück geformt hatte. Diesen wollten wir erhalten, so dass heute an gleicher Stelle ein Fußweg durch das Quartier führt, den die Nachbarschaft weiter als Durchwegung zur Hauptstraße nutzen kann. Die befestigten Flächen in den Freianlagen bestehen entweder aus einer wassergebundenen Decke oder sind gepflastert. Die privaten Gärten der Doppelhäuser erhielten neben einer Terrasse jeweils einen Obstbaum, ein Hochbeet und eine Rasenfläche. Die restlichen Grünanlagen wurden mit Bäumen, Hecken und Büschen einheitlich gestaltet und werden vom Eigentümer gepflegt, sodass die Qualität der Anlage langfristig gewährleistet bleibt.
Durch die differenzierte Ausformulierung der Fassaden aus einem warmen roten, im Ringofen hergestellten Torfbrandklinker mit hellen Sichtbetonelementen und gepulverten Aluminiumelementen erhalten die Gebäude bei der gleichen Materialität in der Fassade einen ganz eigenen Charakter. Der detailreiche und expressive Umgang mit den Ornamentflächen, unterschiedlichen Mauerwerksverbänden sowie den kleinen Rücksprüngen erzeugt auf den Fassaden ein raffiniertes Licht- und Schattenspiel. Die tiefen Fensterlaibungen der großen Brüstungsfenster mit Absturzsicherungen vor den Öffnungsflügeln unterstreichen die fein detaillierte und handwerklich anspruchsvolle Fassadengestaltung, die die Bauherren sich neben dem Gründungsjahr auf der Hauptfassade des Mehrfamilienhauses für das Bauvorhaben gewünscht hatten.
Landheer Architekten