Glashütte Alt-Stralau
Eyrich-Hertweck Architekten
Von der Werkstatt zum Wohnhaus

Auf der Halbinsel Stralau war mehr als 100 Jahre lang Glas hergestellt bis Mitte der 1990er Jahre die Produktion eingestellt wurde. Ab den 2010er Jahren gab es zahlreiche Interessenten für die Grundstücke des ehemaligen Glaswerks, nicht aber für die denkmalgeschützten Industriegebäude. Die sich ab 2012 formierende Baugruppe „Glashütte Alt-Stralau“ erhielt den Zuschlag für den Kauf des landeseigenen Grundstücks, weil sie als einziger das Baudenkmal erhalten wollte.
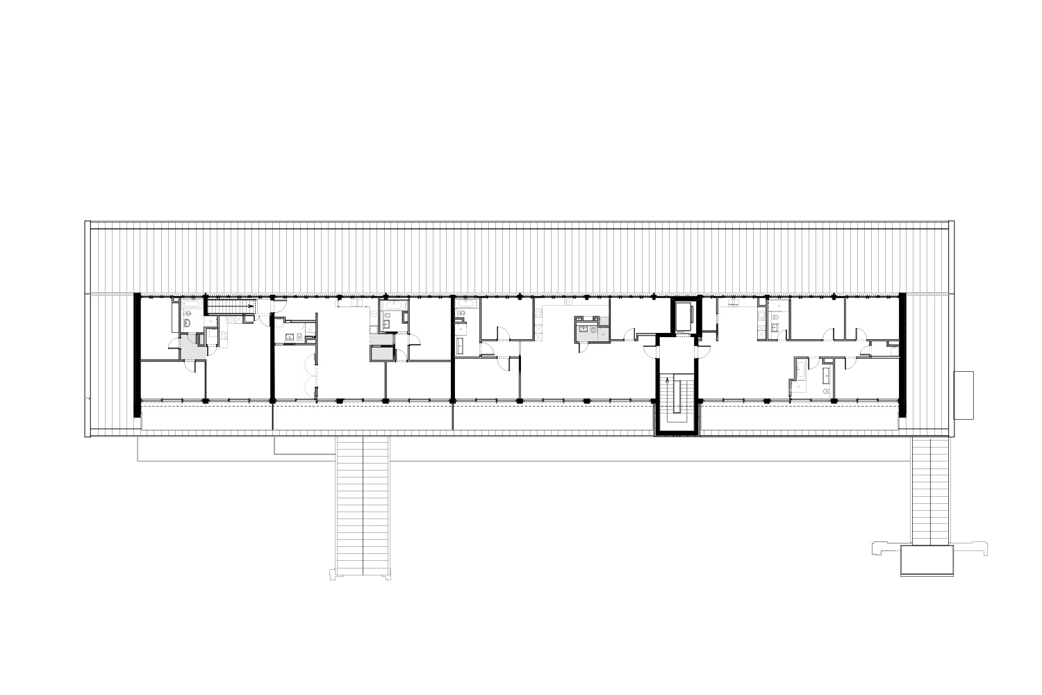
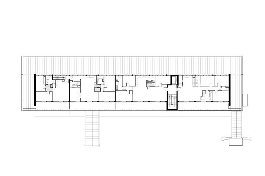
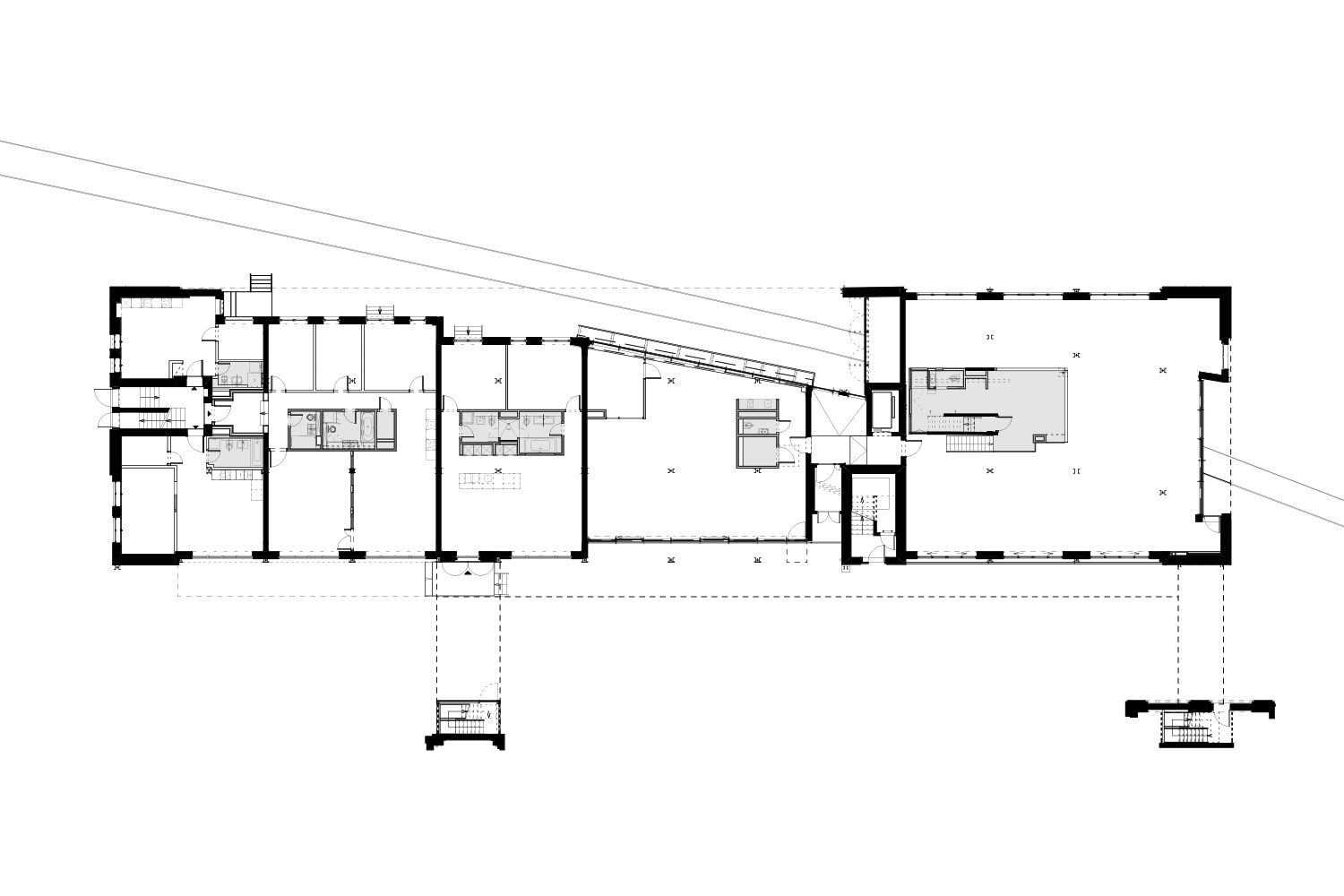
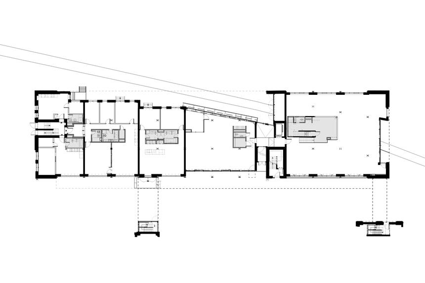
Eyrich-Hertweck Architekten haben für diese Baugruppe das ehemalige Werkstattgebäude umgebaut und aus dem Fabrikgebäude ein Wohngebäude mit 25 Wohnungen und einer Gewerbeeinheit gemacht. Behutsam wurde der denkmalgeschützte Bestand saniert und wieder seiner ursprünglichen Gestalt angenähert. Dunkle Zinkfassaden mit großen Fenstern umschließen das einst offene Erdgeschoss und – als Reminiszenz an das frühere Bitumendach – auch das neue aufgestockte Dachgeschoss. Aktuelle Ergänzungen, darunter neue Balkone, sind im Kontrast dazu mit wetterfestem, rostendem Baustahl verkleidet. Durch direkte Zugänge zu einzelnen Wohnungen von außen und einem inneren Laubengang mit Maisonetten konnte darauf verzichtet werden, ein weiteres Treppenhaus in die alte Bausubstanz einzuschneiden: die bestehenden wurden zur Erschließung des Dachgeschosses erweitert und um einen Aufzug ergänzt.
Die charakteristische Stahlskelettstruktur des Bauwerks bleibt auch in den Innenräumen sichtbar: In die hohen, lichtdurchfluteten Etagen wurden niedrige Sanitär- und Serviceboxen eingestellt, die begehbar sind und somit zusätzliche Staufläche bieten. Es entstanden fließende Räume und Blickachsen quer durch das Gebäude, die in den Wohnungen den Loft-Charakter erhalten. Energietechnisch gesehen ist das Gebäude eine Herausforderung. Die bestehende Stahlkonstruktion, deren Skelett sich von der Fassade in das Innere des Gebäudes zieht, ist sozusagen eine einzige Wärmebrücke und eine Außendämmung war für die denkmalgeschütze Glashütte nicht möglich. In weiten Teilen der historischen Längsfassaden lösen eine zweischalige, hinterlüftete Fassade und Kastenfenster das Problem: hinter die dünne, historische Mauerwerksausfachung des Stahlskeletts wurde von innen eine neue, mit Holzfaserplatten gedämmte Brüstung eingestellt. Auf dieser sitzt der innere, wärmedämmende Teil des Kastenfensters, der den Erhalt bzw. die Rekonstruktion der alten, einfach verglasten Industriefenster möglich macht. Zwischen den äußeren und inneren Flügeln der Kastenfenster ist der Sonnenschutz integriert. An den Stirnseiten des Gebäudes dämmen Calciumsilikatplatten von innen das bestehende Mauerwerk. Die Lüftung stellt eine Abluftanlage in Kombination mit Fensterfalzlüftern sicher. Der sehr gute Luft- und Trittschallschutz konnte durch die Wohnungstrennwände aus Mauerwerk und Gewichtserhöhung der Bestandsbetondecken erreicht werden. Trotz des sehr hohen baulichen und denkmalpflegerischen Schwierigkeitsgrades konnten nachhaltige und ökologische Baustoffen verwendet werden – zum Beispiel Holzfasserdämmung auch im Trockenbau, Calciumsilikatplatten, Kalkzementputz mit Silikatfarben. Zur Lösung der dämmtechnischen Probleme wurde eng mit einer Bauphysikerin zusammen gearbeitet.
Eyrich-Hertweck Architekten