Petrolstation
AIDarchitecten bvba

Architektonischer Dialog
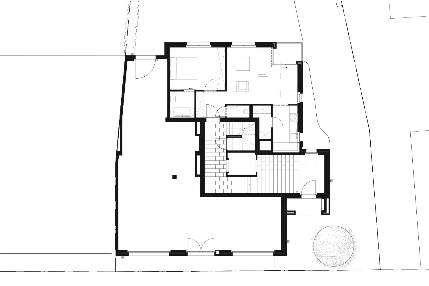
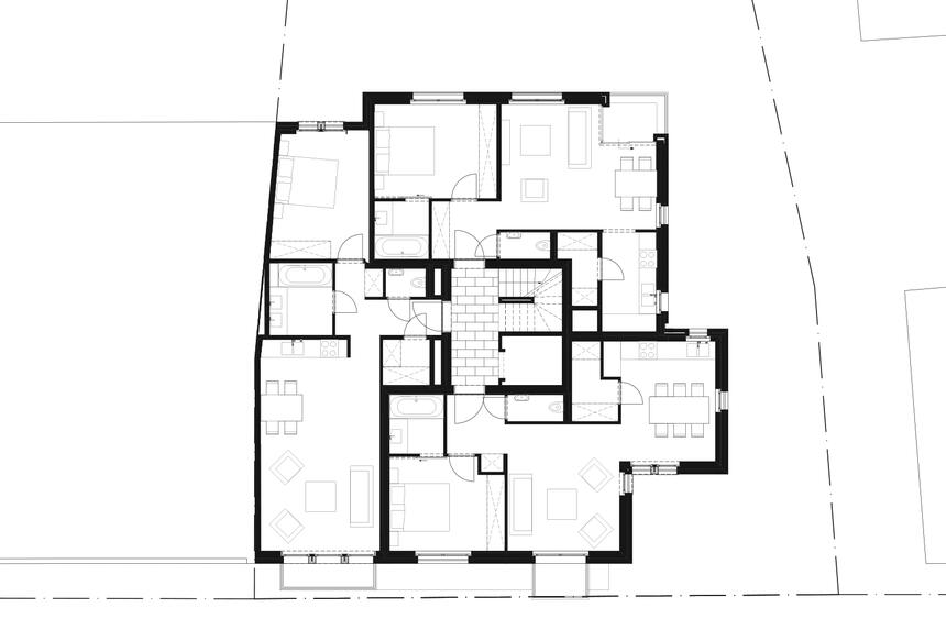
Das Charakteristikum des Vorgängergebäudes, das aufgrund bauphysikalischer Mängel ersetzt wurde, war eine zurückspringende Seitenfassade. Indem die Architekten diese Bewegung in den neuen Entwurf übernommen haben, konnte einerseits ein Puffer zwischen Straße und Gebäude geschaffen werden, andererseits bildet der Vorsprung ein Spiegelbild des monumentalen Landhauses auf der gegenüberliegenden Straßenseite. So tritt das Wohnhaus in einen architektonischen Dialog. Durch größere Spielräume zu den Nachbargebäuden wird die Privatsphäre gegenseitig gewahrt.
AIDarchitecten bvba