Hackney New Primary School & 333 Kingsland Road
Henley Halebrown

Architektur, die Interaktion fördert
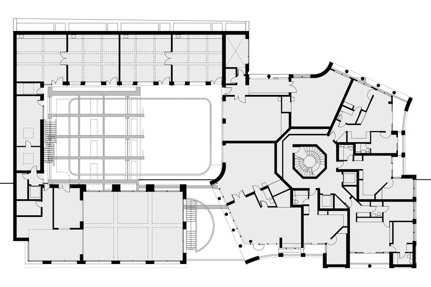
Das Herzstück der Schule ist der Innenhof, der eine Welt in verkleinertem Maßstab für kleinere Menschen darstellt. Die Bebauung ist am Rand des Geländes verteilt, um einen möglichst großen Innenhof zu schaffen, und ersetzt die internen Korridore durch offene Galerien, die sich um den Hof herum erstrecken. Das Ergebnis ist ein effizienter Grundriss mit hohem Netto-Brutto-Verhältnis, eine gesunde Zirkulation und eine direkte Beziehung zwischen Innen- und Außenraum. Jedes Klassenzimmer hat eine Art Schaufensterfront zum Innenhof – was von den jüngsten Schülerinnen und Schülern wörtlich genommen wird. Die Galerien dienen der Orientierung und Organisation der Schule auf allen Ebenen. Die Kinder sowie Lehrerinnen und Lehrer bewegen sich im Außenraum von einer Aktivität zur nächsten, was den Schülern das Verständnis und dem Personal die passive Überwachung erleichtert. Das Hofmodell ist sowohl nachhaltig als auch wirtschaftlich, da es ohne Korridore auskommt, was die Finanzierung zusätzlicher Unterrichtsräume und die Planung eines kleineren Gebäudes ermöglicht. Zwei Klassenzimmer mit zwei Seiten sind mit Doppeltüren verbunden, so dass jede Jahrgangsstufe mit 50 Kindern gemeinsam lernen kann. Die Lernräume sind alle zum Innenhof hin ausgerichtet und überblicken sich gegenseitig. Die Rezeption befindet sich im Erdgeschoss, die Klassen 1 bis 4 im ersten Stock und die Klassen 5 bis 6 im zweiten Stock. Über das Lernen hinaus spielt eine große Rolle, wie der Raum die Interaktion gestaltet, und Momente hervorzaubert, die Assoziationen und Freundschaften fördern. Die Halle neben dem Schuleingang, die einen Puffer zur Straße bildet, wird durch ein Oberlicht erhellt und ihre blinde Erdgeschossfassade wird durch eine nach Süden ausgerichtete Bank zur Straße hin markiert. Hier können die Eltern sitzen und sich unterhalten, während sie auf ihre Kinder warten. Solche in der Bausubstanz verankerten Räume betten soziale Muster in die Architektur ein, die Wand wird zu einer Form der sozialen Infrastruktur.
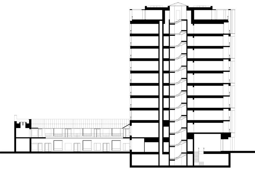
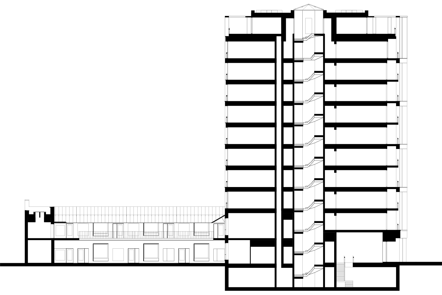
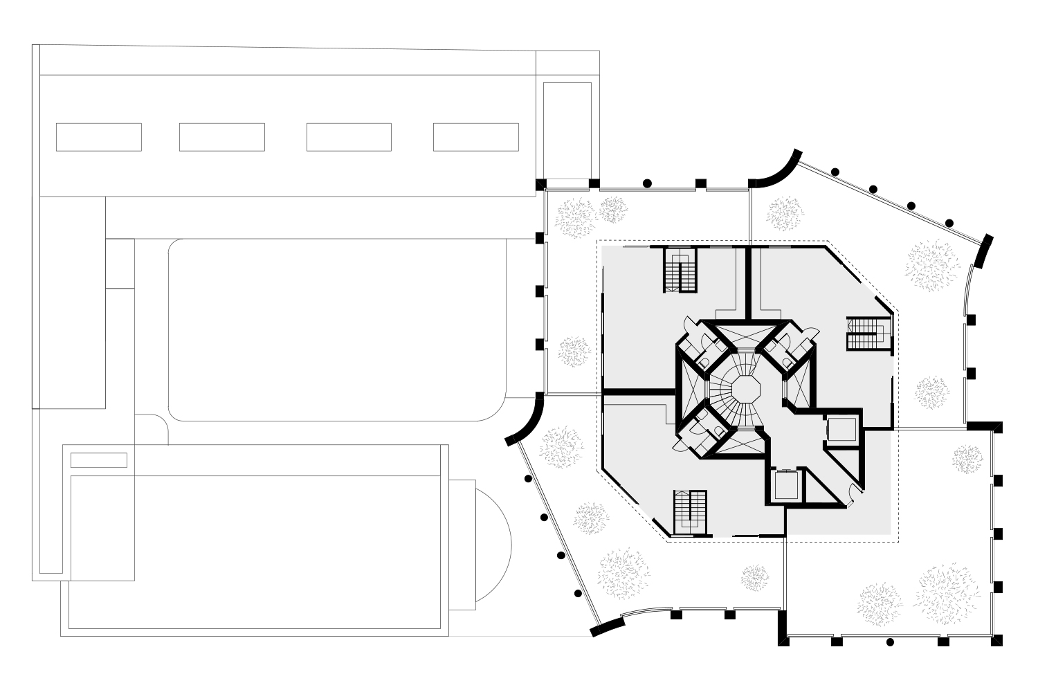
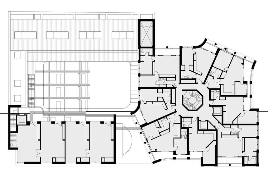
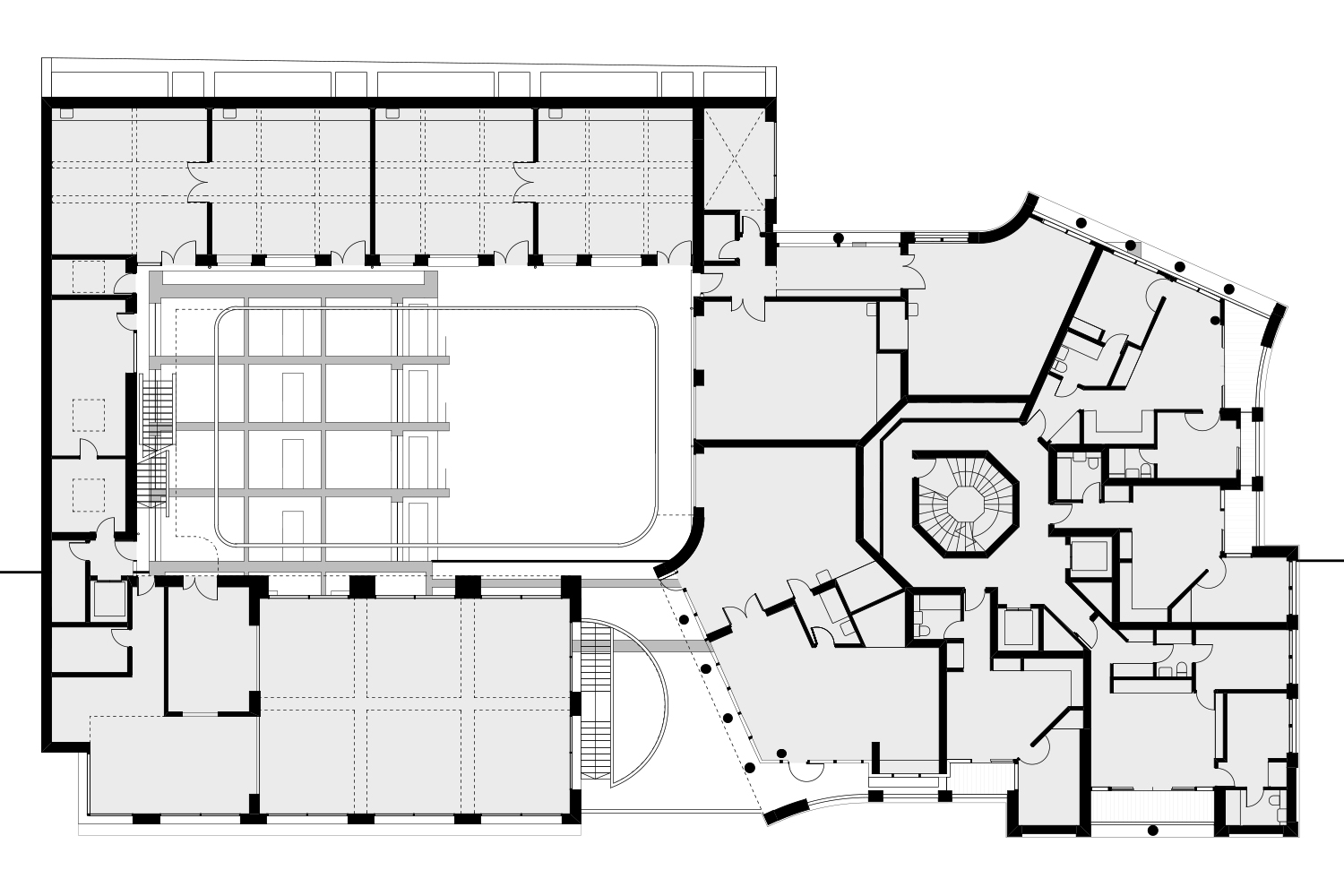
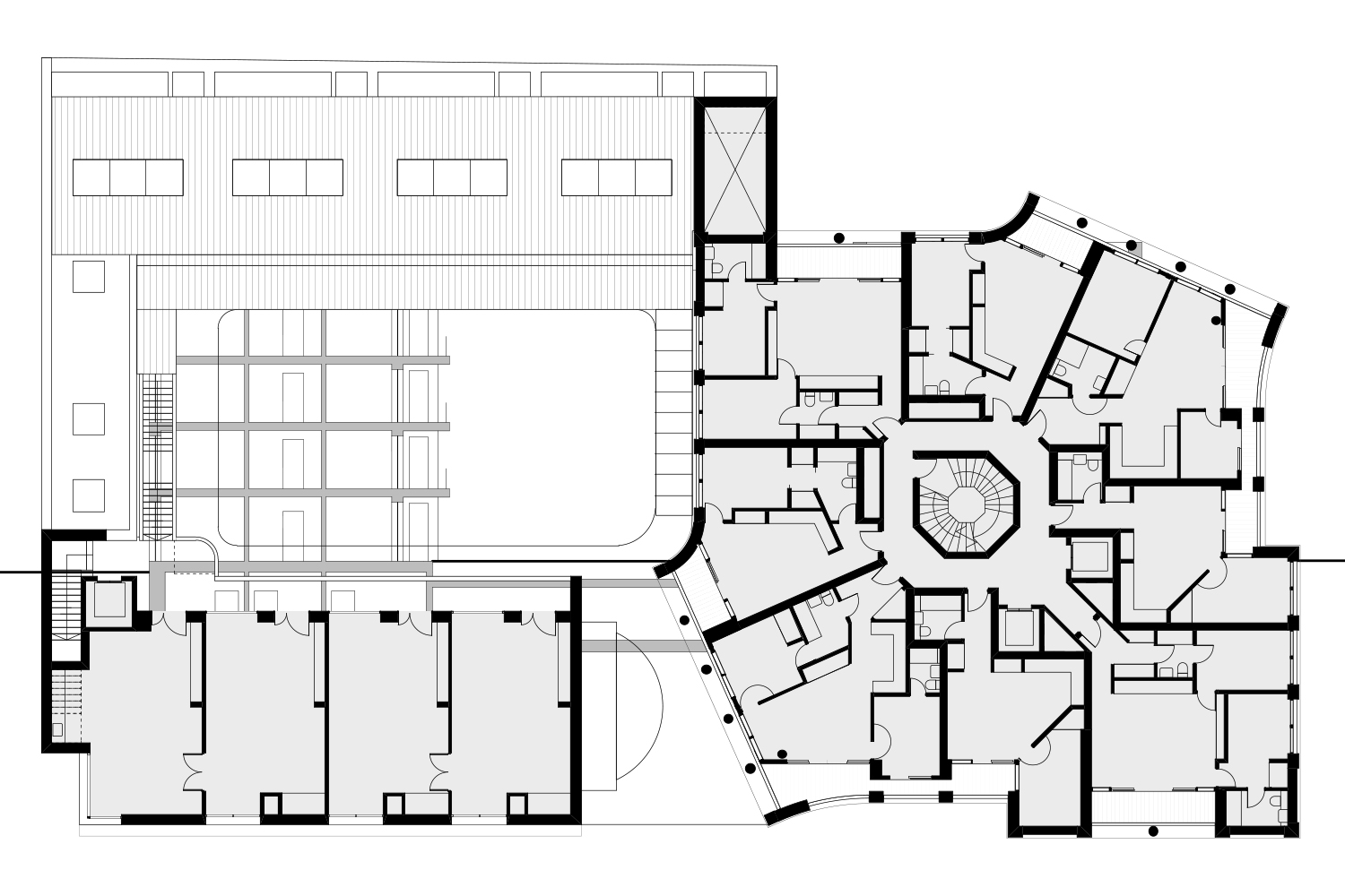
Das Mehrfamilienhaus gruppiert acht Wohnungen pro Stockwerk um eine zentrale achteckige Treppe, mit drei Maisonette-Wohnungen und einem gemeinsamen Dachgarten. Der Grundriss ist symmetrisch um eine diagonale Achse aufgebaut, die zu einer diagonalen Straße führt, die in die De Beauvoir Town Conservation Area führt. Die in die gemauerten Fassaden eingelassenen Loggien erstrecken sich über die gesamte Höhe des Gebäudes. Diese Räume vermitteln zwischen Haus und Stadt und bieten einen großzügigen Außenraum, der weit über die Mindestanforderungen hinausgeht. Die Wechselbeziehung zwischen Fassade und Struktur sowie ihre Tiefe definieren das Gebäude. Die Kombination von gemauerten Wänden und Loggien verleiht dem Gebäude eine würdevolle Robustheit und Schwellen zum Wohnen.
Das Gebäude besteht überwiegend aus rotem Backstein, mit Elementen – Säulen, Balken, Wangen und Brüstungen – aus Betonfertigteilen, deren tiefrote Farbe vom roten Granitzuschlag und roten Sand herrührt. Handverlegtes, spitz zulaufendes Mauerwerk wird mit vorgefertigten Backsteinwangen und freiliegenden Fertigteilen kombiniert, die stark geätzt sind, um die Textur der Zuschlagstoffe sichtbar zu machen. Das Mauerwerk ist im Detail gestuft, facettiert und geschwungen und bietet Platz für einheitliche Öffnungen und Loggien. Der Innenhof ist mit einem hellen, elfenbeinfarbenen glasierten Backstein verblendet, der mit einer variablen lichtdurchlässigen Glasur versehen ist, um den Raum zu beleuchten.
Henley Halebrown