Luise 19E
undjurekbrüggen

Creating SOCIAL AND ECOLOGICAL VALUE
Luise 19E was supposed to be demolished. But with the brick recovered from the deconstruction, a new house was created in a participatory process – true to the motto: by the community for the community.
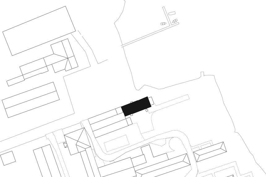
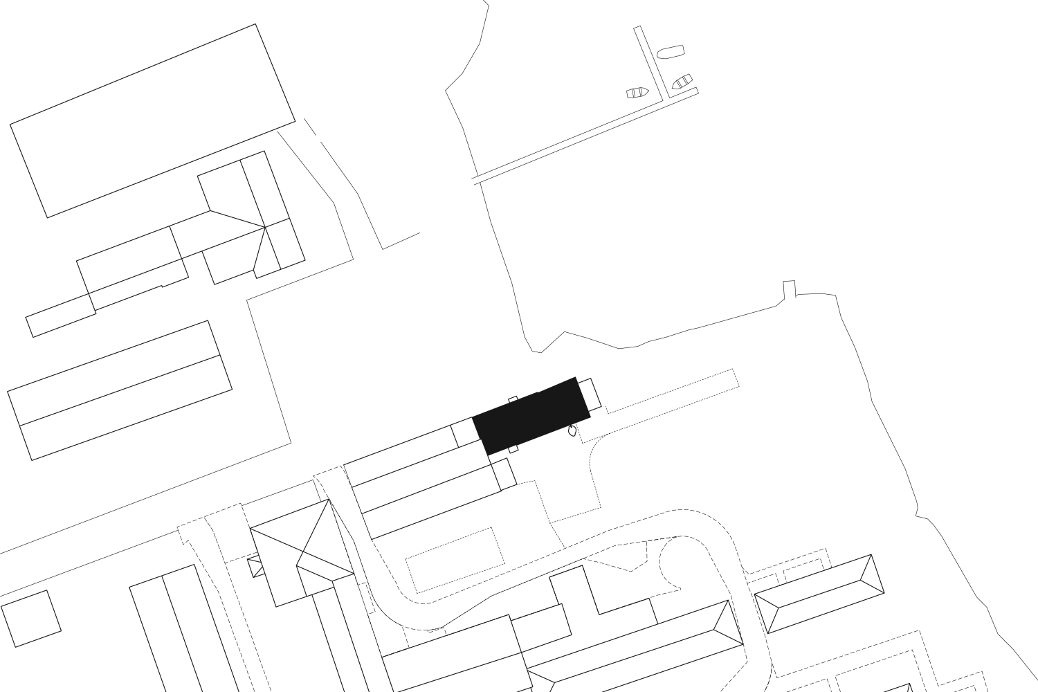
Luise 19E was once an old dirty building with four garages and was actually supposed to be demolished. It stands on the landmarked site of Uferwerk eG, a cooperative for communal and sustainable multigenerational living.
Some of the foundations were insufficiently deep, the soil was also contaminated with oil, the -bricked walls had large cracks, and rain was pouring in through the roof. The roofing contained -asbestos and PAH. The interiors were small and dark, the brickwork appeared cold and damp.
In a competition, the young architects from undjurekbrüggen won and saved the building. Despite the very poor condition and the already approved replacement building, they proposed to preserve and renovate Luise 19E as far as possible. Luise 19E was to become a community house for all residents - as a meeting place and common living space for all.
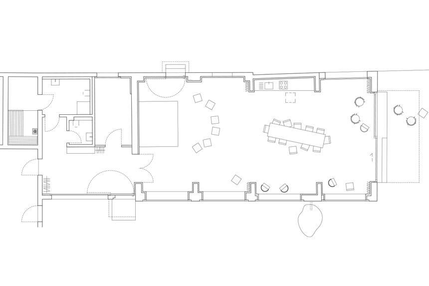
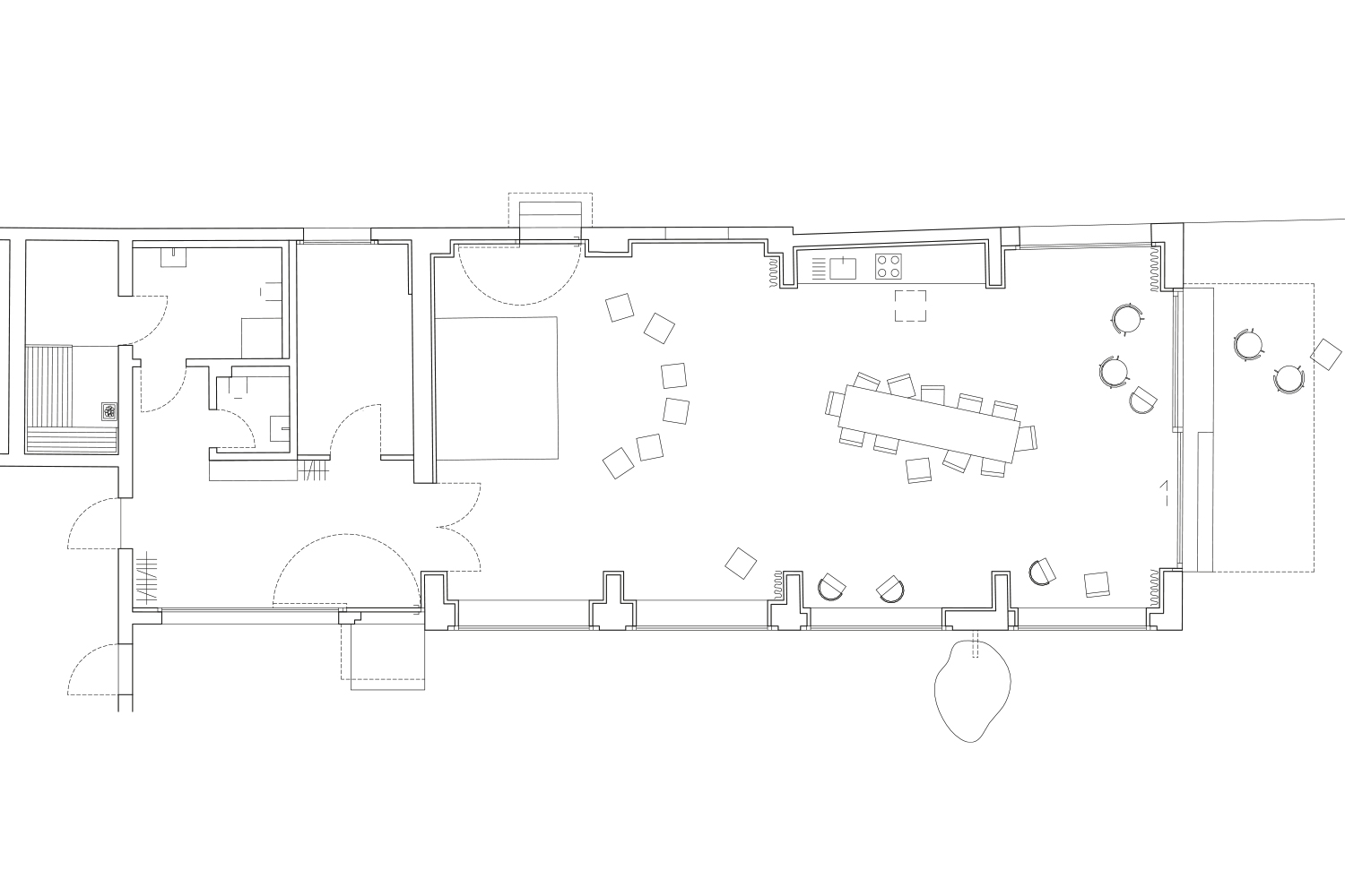
The new design and use of Luise 19E was developed in a participatory planning and construction process with the cooperative's members. In numerous workshops, lectures and project groups, the use and design were discussed - in numerous work assignments, people participated in their own work on the construction site.
The roof had to be torn off and disposed of due to heavy contamination. The eastern garage without an existing foundation could be carefully dismantled and new foundations erected. The previous volume was rebuilt with large, new openings using the stones from the removal. The partition walls were demolished except for wall supports, and the exterior walls were built up to a height with the stones thus obtained and rehabilitated. A new ring beam stabilizes the building. A ceiling made of wooden beams supports the wood-fiber insulation and a green roof. Above this is a translucent photovoltaic system made of individual tubes.
The existing building was left in its heterogeneity and only structurally repaired or supplemented with reused material. The new roof with its visible wooden beam ceiling and ring beam contrasts with the existing structure both internally and externally. The former garages remain identifiable through the wall panels and structure the large common room. This opens through a large sliding window to the east onto the terrace and the adjacent river.
Luise 19E not only stores gray energy in its existing walls and foundations - the renovation also reused and reinstalled bricks recovered from deconstruction. Luise 19E compensates for soil sealing with a green roof, and its photovoltaic system, elevated above, produces renewable electricity. Climate-positive interior insulation made of hemp lime reduces energy consumption. Various walled-in nesting boxes in the facades provide habitats for numerous bird species and promote biodiversity. Luise 19E is now an ecological, spacious community house.
Jurek Brüggen