Ein Stadthaus im Lübecker Gründungsviertel
Anne Hangebruch und Mark Ammann Architekten GmbH
STUFENGIEBEL MIT FORMSTEINRELIEF

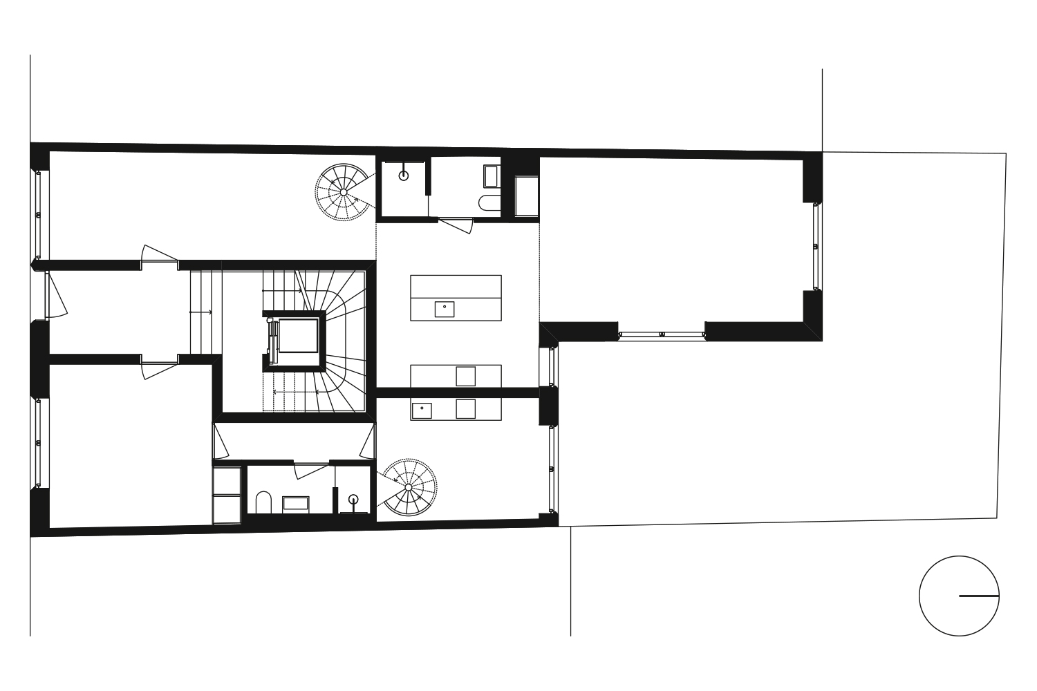
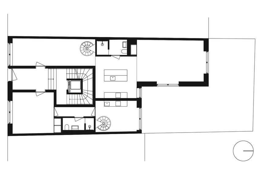
Das Stadthaus Fischstraße 16 entwickelt aus dem historischen Typus des Lübecker Kontorhauses, in dem unter einem Dach gewohnt, gearbeitet und gelagert wurde, ein vielfältiges Raumgefüge für die Ansprüche und Bedürfnisse eines zeitgemäßen Wohn- und Geschäftshauses. Es beherbergt im überhohen, mit Galerien ausgestatteten Erdgeschoss zwei Laden- und Bürolokale. Die Wohneinheiten der Obergeschosse sind unterschiedlich geschnitten und besitzen eigene räumliche Themen, entwickeln sich etwa durch die Tiefe der Parzelle von der Straße bis in den Seitenflügel hinein oder sind mit Blick über die Altstadt in dem doppelgeschossigen Dachraum geborgen. Inspiration für den Entwurf der Fassade lieferten das Thema des Staffelgiebels und das Ausloten der Möglichkeiten, die das Material Backstein zur Reliefbildung einer städtischen Fassade bietet.
Der Fassadenentwurf sucht die Verwandtschaft zu den gotischen Backstein-Bürgerhäusern Lübecks. Die Straßenfassade ist in einen muralen, zweigeschossigen Sockel und ein feines Backsteinrelief gegliedert. Der Staffelgiebel überformt das dahinter verborgene Dach, vergrößert die Fassadenfläche und schafft somit eine stärkere Fassung des Straßenraumes. Schlanke, aus Formsteinen gebildete, Backsteinlisenen betonen die Verti- kale. Sie finden ihren Abschluss je in einem horizontalen Gesims, das die Blenden bekrönt. Die Sockelausbildung in naturbelassenem Kalkputz, in Farbigkeit und Textur dem traditionell verwendeten Kalkstein angenähert, ermöglicht eine fugenlose Oberfläche und unterstützt den Eindruck des Monolithischen.
Anne Hangebruch und Mark Ammann