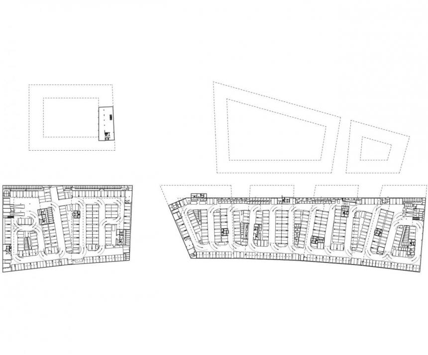
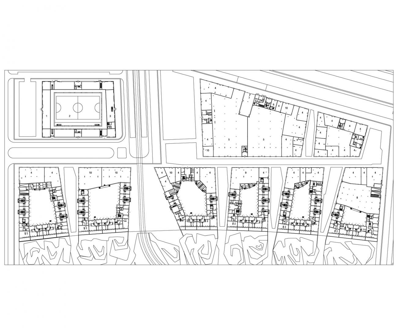
Stadtteilzentrum Ypenburg
Rapp+Rapp

Stadtteilzentrum mit Seltenheitswert
Für dieses gelungene Beispiel, das sicherlich - auch bezogen auf Europa - Seltenheitswert hat, entschied sich die Jury, zusätzlich die Kategorie Städtebau einzuführen und das Projekt hier auszuzeichnen.
„Dieser Teilplan geht aus einem europäischen Wettbewerbsverfahren hervor, den das Konsortium von Rabo Vastgoed und Foruminvest in Zusammenarbeit mit Rapp+Rapp gewonnen hat. Das Zentrum des Wohnungsbauprojekts Ypenburg bei Den Haag umfasst 481 Wohnungen, 9.650 m² Gewerbefläche, 8.550 m² öffentliche Einrichtungen sowie 15.000 m² Tiefgarage. Der Masterplan von Frits Palmboom erfuhr einige Modifizierungen. So wurde die südliche Bauflucht leicht gebogen, Querverbindungen sowie eine zentrale Einkaufsstraße integriert und jedem Block ein Turm zugefügt. Diese Türme markieren die Eingangsbereiche zu den einzelnen Blöcken und zeichnen zugleich die charakteristische Silhouette von Ypenburg.“
Rapp+Rapp