Galeriegebäude am Kupfergraben 10

David Chipperfield Architects

Galeriegebäude am Kupfergraben 10

Neue architektonische Toleranz

Für das Berliner Kunsthändler- und Sammler-Ehepaar Céline und Heiner Bastian entwickelten David Chipperfield Architects ein Haus, modern und zeitgemäß, das sich trotzdem angenehm einreiht. Ein gelungenes Beispiel für einen Alt-Neu-Bezug.

 

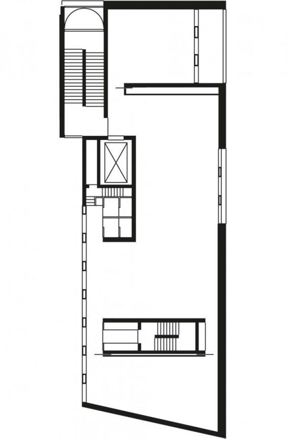
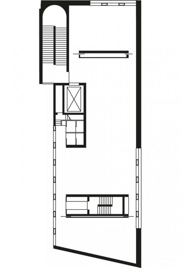
Das viergeschossige Galeriehaus schließt die letzte Baulücke zwischen Museumsinsel und Schinkels Neuer Wache. Trotz prominenter Nachbarschaft nimmt sich das Bauvolumen der Galerie zurück, ja ist fast bescheiden. Massiv verwandte, alterungsfähige Materialien prägen die äußere Erscheinung. Die Materialien der Fassade lassen verblüffen: Auf Wunsch des Bauherrn verwendet man aus abgebrochenen Altbauten geborgene Backsteine, aufgemauert ohne sichtbare Dehnungsfugen und anschließend mit einer dünnen, kalkfarbenen Mörtelschlemme überzogen. So könne das „Haus richtig altern“, meint Heiner Bastian.

Das Galeriegebäude ist Sieger des Fritz-Höger-Preises 2008 in der Kategorie Büro- und Gewerbebauten. Die Erklärung der Jury: „Das Galeriegebäude in Berlin, das sich unter Verwendung von schlämmverfugten Abbruchziegeln im Reichsformat in die Sandsteinfassaden der historischen Nachbarschaftsbebauung einreiht, beweist nicht nur die Nachhaltigkeit des Backsteins, sondern auch die zeitlose Dialogfähigkeit des Materials im historischen Kontext.“ Das Galeriehaus „Am Kupfergraben 10“ liegt vis-à-vis der Museumsinsel und in unmittelbarer Nähe zum Lustgarten. Es inkorporiert als modernes Haus die Vergangenheit ohne Vergangenes formal zu kopieren. Als Bestandteil des Stadtbildes tritt der viergeschossige Baukörper in einen Dialog mit der historischen Umgebung, während die großformatigen Fensteröffnungen den städtebaulichen Dimensionen des Geländes entsprechen.

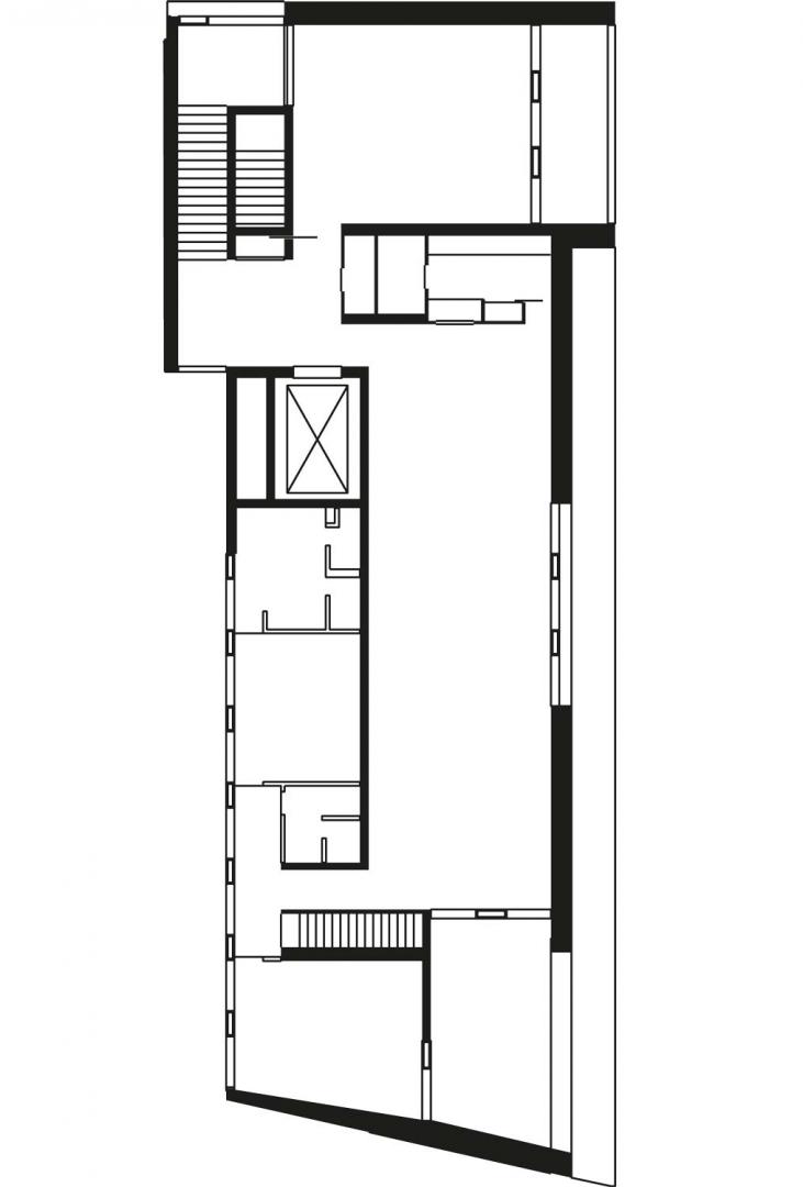
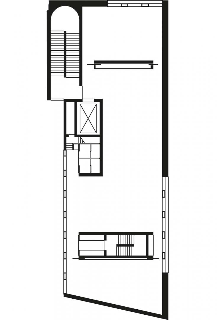
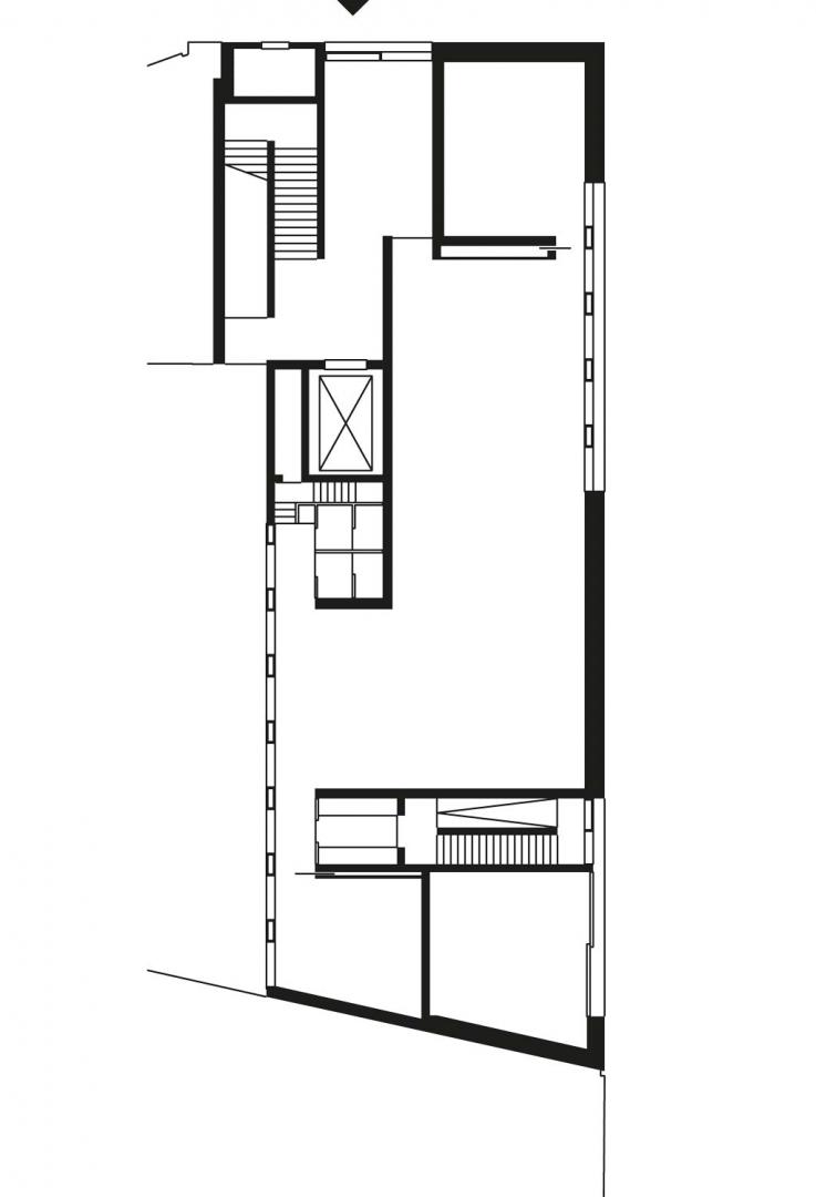
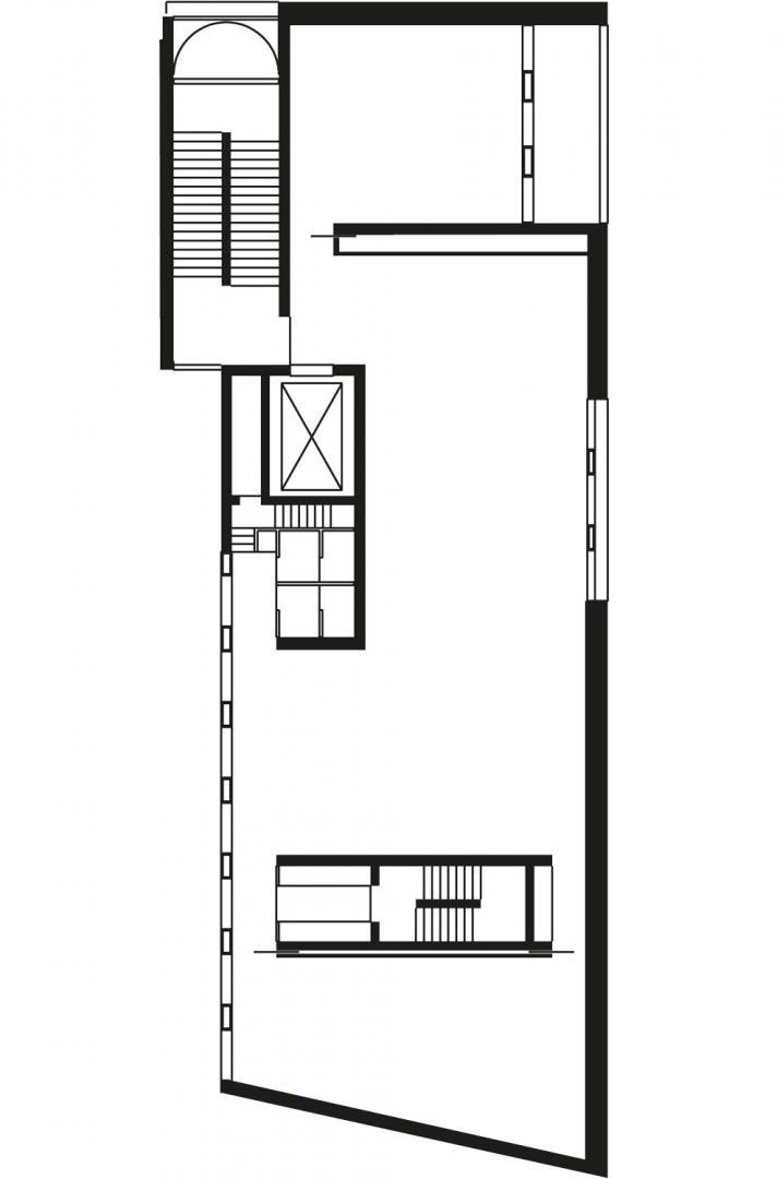
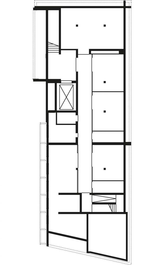
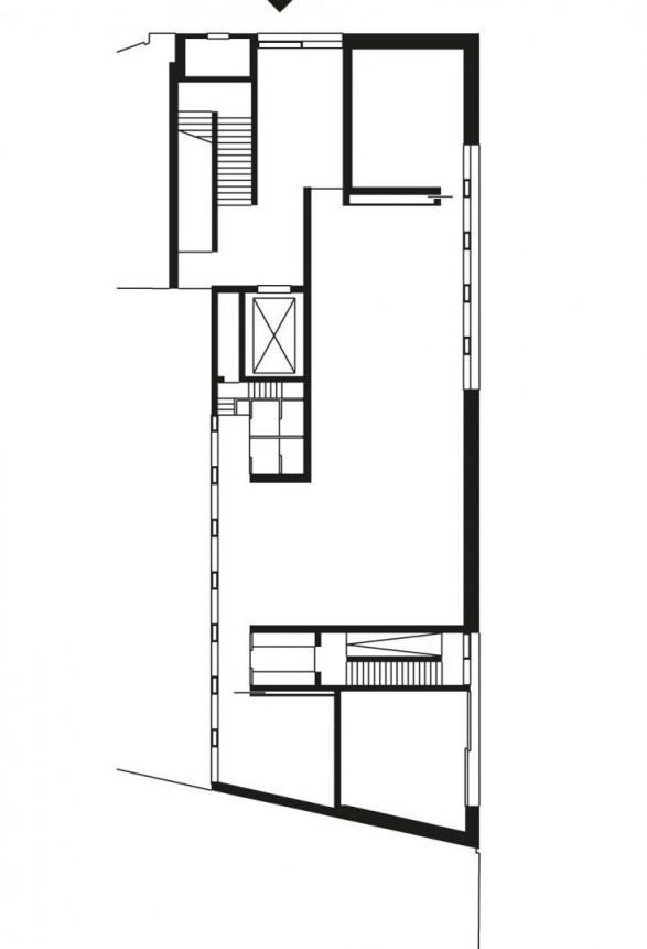
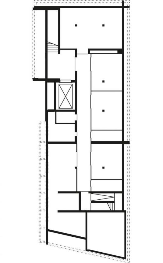
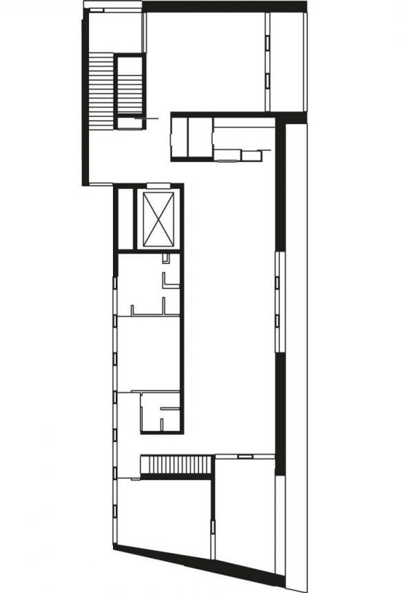
Obgleich es als Stadtreparatur und Blockrandschließung an die beiden Nachbargebäude jeweils auf deren Höhe anschließt und den Grundriss des kriegszerstörten Vorgängerbaus einnimmt, entwickelt das Ziegelvolumen des Hauses eine besondere skulpturale Qualität. Auf Betonwerksteinkonsolen wurden die Fassaden aus Abbruchziegeln im Reichsformat ohne sichtbare Dehnungsfugen aufgemauert und schlämm verfugt. Großformatige Fensteröffnungen reflektieren die großmaßstäblichen, städtebaulichen Bezüge des Grundstücks. Sie sind kompositorisch in die Fassaden gesetzt und durch unbehandelte hölzerne Öffnungsflügel gegliedert.

Während massiv verwandte, alterungsfähige Materialien die äußere Erscheinung prägen, wird das Innere nicht durch Material, sondern durch Tageslicht und Proportion bestimmt. Tragende eingestellte Körper enthalten die Nebennutzungen und organisieren die 5,50 m hohen Räume. Die einfache Grundrissfigur variiert in den vier Geschossen durch die Volumenausbildung des Baukörpers und die Fensteröffnungen. Seitenlicht fällt aus unterschiedlichen Richtungen in die Galerieräume. Über Innenklappläden lässt sich das einfallende Tageslicht reduzieren.

Das Galeriehaus bietet Platz für großzügige Räume, in denen Kunst gezeigt wird, in denen man aber auch wohnen oder arbeiten könnte – ein Stadthaus für die Kunst, in dem diese nicht von der Welt isoliert, sondern zur kulturellen Mitte der Stadt in Beziehung gesetzt wird.

 

David Chipperfield Architects

Ort
Berlin, Deutschland
Bauherr
Céline & Heiner Bastian
Grundstückfläche
560 m²
Bauzeit
2003 – 2007