TV Tube Factory
Hilberinkbosch Architecten
Wo die Bildröhre weiterlebt
Das einstige Philips-Fabrikgelände wurde in ein lebendiges Wohnquartier verwandelt, das seine industrielle Vergangenheit würdigt. So erinnern etwa die 80 Wohnhäuser in ihren Umrissen und ihrer Farbigkeit an die Bildröhrenfabrik, die zuvor dort stand.

Eindhoven und Philips sind untrennbar miteinander verbunden. Bis zu ihrem Umzug nach Amsterdam in den frühen 2000er-Jahren machte die Firma mit ihren drei Produktions- und Forschungsstandorten Strijp S, Strijp T und Strijp R aus der Kleinstadt einen bedeutenden Industriestandort. Die Konturen der abgerissenen Philips-Bildröhrenfabrik, des Gebäudes RO auf Strijp R, bilden den Umriss eines neu entwickelten Wohngebiets mit 80 Häusern. Wichtige Elemente aus der früheren Produktion dienten als Inspiration für die Abgrenzung des Viertels und die architektonische Gestaltung der neuen Wohnungen.
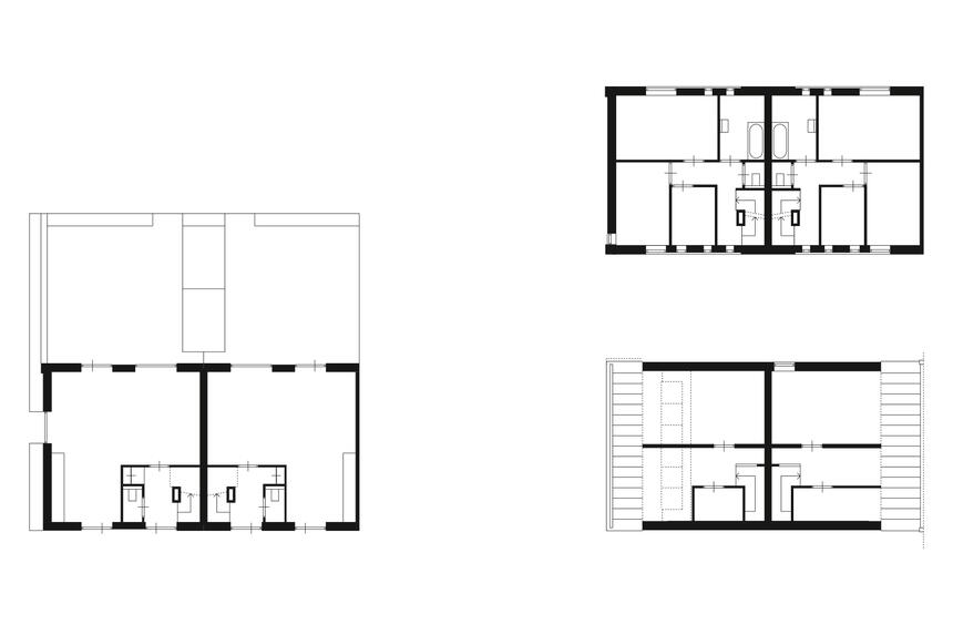
Das Herzstück des neuen Viertels besteht aus Sägezahnwohnungen. Diese Volumen im zentralen Bereich des Stadtteils Strijp R folgen den langen Linien der abgerissenen Fernsehbildröhrenfabrik. Die sichtbare Betonkonstruktion greift den durchgängigen Aufbau auf: Betontrennwände wurden auf ein Planungsraster von 7,50 Metern gesetzt, das sich direkt aus der Breite der alten Fabrikhallen ableitet. Die typische asymmetrische Form der Sägezahndächer ist über zwei Häuser gefaltet, sodass zwei völlig unterschiedliche Wohnformen entstehen.
Drei Querstraßen, die diese starre Sägezahnstruktur durchdringen, führen zu den drei Höfen. Da die Straßen die Struktur an drei zufälligen Stellen durchschneiden, wird der Schnittpunkt der durchgehenden Struktur sicht- und spürbar. So entstehen besondere Ecken und Häuser, die jeder inneren Straße ihre eigenen Qualitäten und ihren eigenen Charakter verleihen. Bei den Fassaden wechseln sich große Mauerwerksflächen aus klarkantigem Backstein mit Aluminiumfronten ab. Die Rahmenkomposition dieser Fassaden hat die spezifischen Maße und die Verteilung der Philips-Stahlrahmen übernommen und stellt eine Verbindung zu den monumentalen Industrierelikten des Viertels her. Die unterschiedlich unifarbenen Paneele in den unteren Fronten trennen die Höfe optisch voneinander und stellen gleichzeitig einen Bezug zu den Grundfarben des (Bildröhren-)Lichts – Rot, Grün und Blau – her. Die Treppenhäuser sind in separaten Türmen untergebracht, die in einer Linie stehen und in Anlehnung an die charakteristischen Kühltürme der Glasschmelze leicht aus der Rück- oder Frontfassade herausragen. Eine Ecke des Geländes ist für einen viergeschossigen Wohnkomplex mit Tiefgarage reserviert, dessen Fassaden in Anlehnung an die alten Philips-Büros einen Wechsel von Mauerwerksflächen und großen, sich wiederholenden Öffnungen aufweisen. Auch hier betonen vertikale Betonelemente die Struktur, da sie einen schlanken, auskragenden Dachrand aus Beton tragen.
Indem sich der Gebäudekomplex von der Umgebung und den abgerissenen Gebäuden inspirieren lässt, entwickelt er eine klare Sprache, um eine Verbindung mit der industriellen Vergangenheit der alten Philips-Fabriken herzustellen. Gleichzeitig berührt er in einem zeitgemäßen Erscheinungsbild die Erinnerung an diese industrielle Periode in der Entwicklung Eindhovens.
HILBERINKBOSCH architecten