Haus Pohlmann

Johannes Götz, Guido Lohmann

Haus Pohlmann

NEUES HAUS NACH TRADITIONELLEM VORBILD

Das Haus Pohlmann strahlt Respekt vor der regionalen Geschichte eines gewachsenen städtischen Umfeldes aus den 50er Jahren aus. Dass es ein Neubau ist, ist für den Betrachter erst auf den zweiten Blick erkennbar.

 

„Bei genauerer Betrachtung erkannte ich die Schönheit der Raumfolge, die Großzügigkeit der Raumhöhen und die daraus resultierende gute Statur des Baukörpers“, sagte die Bauherrin nach der Präsentation des ihren Wünschen zunächst völlig entgegengesetzten Architekten-Entwurfes. Ursprünglich hatte sie sich ein modernes Haus im Bauhaus-Stil gewünscht. Frau Pohlmann bewohnte mit ihrer siebenköpfigen Familie ein großes Landhaus, welches sie in den achtziger Jahren nach einem Brand mit dem Kölner Architekten Heinz Bienefeld wieder aufgebaut hatte. Nun fasste sie den Entschluss, dieses Haus an ihre Tochter und deren Familie weiterzugeben und für sich ein neues zu bauen, welches unmittelbar für ihre Bedürfnisse konzipiert werden sollte. Sie legte dabei Wert auf die ihr vertraute hohe Qualität von Material und Detail, jedoch wünschte sie sich das neue Haus schlichter und bescheidener als ihr bisheriges. Das neue Baugrundstück befindet sich in Damme, einer Kleinstadt nördlich von Osnabrück in kurzer Entfernung von ihrem bisherigen Wohnort. Es liegt inmitten eines gewachsenen Wohngebietes. Die Bebauung aus den 50er Jahren ist regionaltypisch. Sie besteht aus eingeschossigen Häusern mit steilen Dächern, die meist durch Zwerchhäuser oder Gauben gegliedert sind.

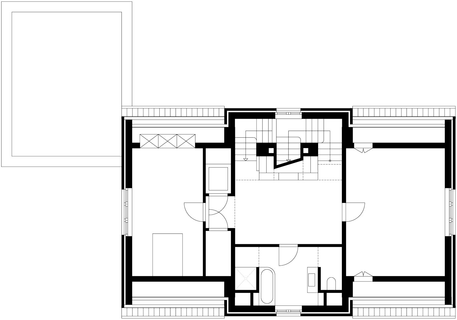
Das bestimmende Material ist bei den Fassaden ebenso wie bei den Dächern roter Ziegel. Mitunter sind Gebäudesockel sowie Fenster- und Türrahmungen in gelbem Sandstein ausgeführt und verleihen den ruhigen Baukörpern so einen gewissen Schmuck. Ebenso ist es auch beim Haus Pohlmann. In den Grundsätzen seiner Gestaltung entspricht es der umgebenden Bebauung, jedoch hebt es sich durch die strenge, ungebrochene Symmetrie des Baukörpers und der Fassaden in geringem Maß davon ab. Die Symmetrie des Baukörpers findet innenräumlich eine Entsprechung. Im Kreuzungspunkt der Gebäudeachsen befindet sich die zentrale Halle. Sie leitet in der Längsachse vom Entree über in den Wohnraum und in der Querachse über die Loggia in den Garten. Das Erdgeschoss ist die Beletage des Hauses. Hier befinden sich die repräsentativen Wohnräume mit dementsprechendem Innenausbau.

Sie haben Terrazzofußböden, welche in den Haupträumen Entree, Halle und Wohnraum mit Randfries ausgeführt sind. Türen und Wandbekleidungen sind mit Rahmen und Füllung gefertigt. Die Treppe liegt als Pendant der Loggia im Rücken der Halle. Sie führt hinauf ins Obergeschoss mit dem Schlaf- und dem Arbeitszimmer und dann weiter ins Dachgeschoss mit den Gästezimmern. Dem Erdgeschoss entsprechend werden auch die Zimmer in den Obergeschossen über eine zentrale Halle erschlossen. In der Gästeetage ist die Dachform innenräumlich erlebbar. Die Räume erhalten dadurch trotz der formalen Einheit mit dem übrigen Haus einen individuellen Charakter.

 

Johannes Götz, Guido Lohmann

City
Damme, Deutschland
Architect
Johannes Götz, Guido Lohmann
Built-up area
190 m²
Construction time
Mai 2006 – April 2007