1101 House
HARQUITECTES
Innen wie Draussen
Das Wechselspiel aus Offen- und Geschlossenheit vereint Gebäudeensemble und Garten zu einem zusammengehörigen Ganzen.

Nur wenige Aufträge beginnen wie dieser. Denn die Bauherren brachten eine Wunschliste und Erwartungen an ihr neues Zuhause mit. Anders als normalerweise kamen diese Wünsche jedoch den Prinzipien und Werten, mit denen Architekten oft im Verborgenen arbeiten, bereits sehr nahe. Eine große Herausforderung, aber auch eine hervorragende Ausgangsbasis.
Das Grundstück bot ausreichend gute Anhaltspunkte, um die Grundlinien für das Projekt vorzuzeichnen. Eines der Hauptziele bestand darin, eine enge und grundlegende Beziehung zwischen Haus und Garten herzustellen. Beide sollten jeweils eine Erweiterung des jeweils anderen sein. Unerwünscht waren jedoch die so häufig eingesetzten, großen Glasfronten. Es sollte ein Haus mit Wänden in einem Garten sein, eben passend für ein Kunstsammler-Paar.
Aus diesen Gründen versuchten wir mit dem Entwurf eine Balance zu finden zwischen möglichst vielen Räumen im Erdgeschoss, ohne das Grundstück mit Backsteinbauten zu überladen. Diese Idee wurde in einer volumetrischen Komposition aus drei kastenförmigen Gebäuden umgesetzt, die im Garten verteilt sind. Die Kästen sind nahezu auf einer Linie auf der Nordseite des Grundstücks angeordnet, sodass ein großer Außenbereich in Südrichtung entsteht. Der erste Kasten im Osten beherbergt den Kinderbereich mit drei Kinderzimmern für je ein Kind im Obergeschoss sowie einem Spielzimmer im Erdgeschoss. Im zweiten Kasten in der Mitte befindet sich der Hauptraum: die Küche, ein fast 30 Quadratmeter und vier Meter hoher Raum, der von einem großen Kamin dominiert wird. Der dritte Kasten im Westen beherbergt den Elternbereich mit dem Schlafzimmer auf der Gartenebene und einem Studio mit hoher Decke im ersten Stockwerk.
Die beiden unterschiedlichen Bereiche, die auf diese Weise zwischen den drei Kästen entstehen, sind überdacht und in Nord-Süd-Richtung zum Garten hin offen, können jedoch mithilfe großer Faltfenster geschlossen werden. Hier herrscht eine völlig andere Atmosphäre, die viel eher dem Garten zugehörig ist als dem Haus. Der erste dieser Übergangsbereiche liegt zwischen dem Kinderbereich und der Küche. Er dient als Eingangshalle. Der zweite, größere Bereich zwischen Elternbereich und Küche ist das Wohnzimmer, allerdings kein gewöhnliches. Im Winter kann es als Wintergarten und im Sommer als luftige Veranda genutzt werden.
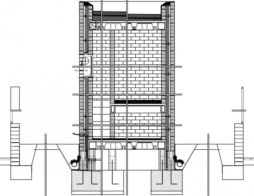
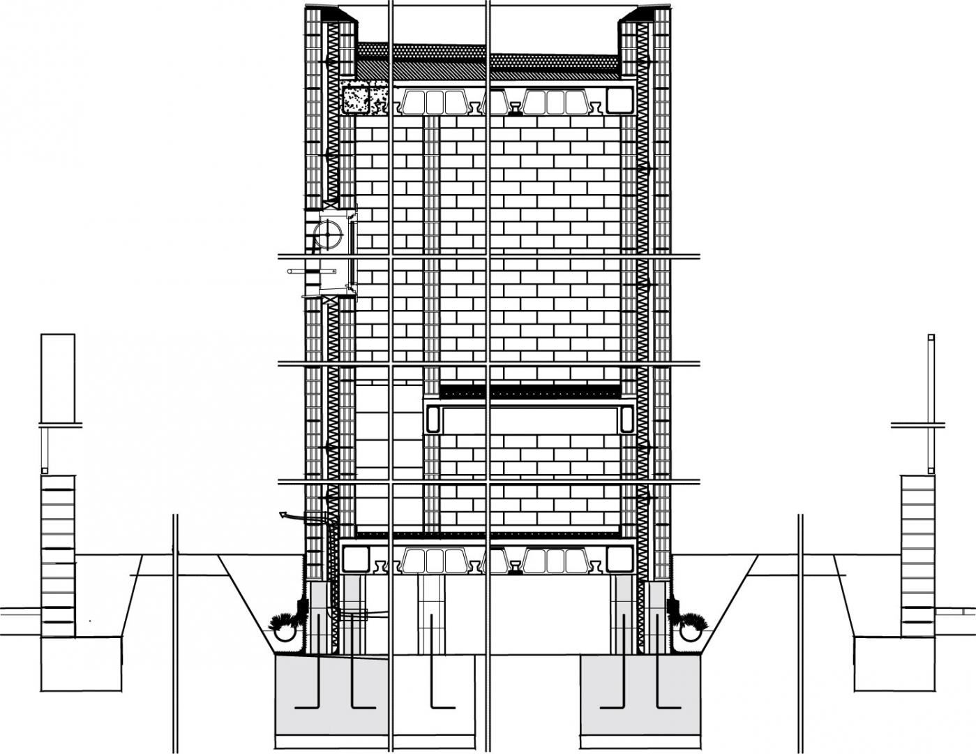
Was die Volumen angeht, so besteht das Haus aus drei Backsteinkuben unterschiedlicher Höhe, die parallel zur Straße auf der Rückseite ausgerichtet sind. Die Kuben sind mit mehreren Fenstern unterschiedlicher Größe ausgestattet, strahlen aber in erster Linie Massivität aus. Daneben wirken die durch eine Betonplatte überdachten und durch Holzglastüren eingerahmten Übergangsbereiche der Kuben nahezu ätherisch. Werden die Fenster zurückgefaltet, verwandelt sich der Bereich sogar in eine offene Veranda.
Passend zu seinem Erscheinungsbild besteht das Haus aus tragenden, zweischaligen Backsteinwänden, für die Außenseite kommen rote Backsteine zum Einsatz, während diese auf der Innenseite weiß gestrichen sind. Die Fenster- und Türrahmen sind aus Holz und mit traditionellen Außenrollos versehen, die bei Bedarf als Sonnenschutz genutzt werden können.
Die Klimatisierung des Hauses erfolgt über eine geothermische Wärmepumpe und eine Fußbodenheizung, über die das Haus im Sommer auch leicht gekühlt werden kann. So kann auf eine Klimaanlage zur Entfeuchtung verzichtet werden.
H Arquitectes