weinbrenner.single.arabzadeh. architektenwerkgemeinschaft

Partnerschaftsgesellschaft

Afshin Arabzadeh
*20.10.1964 Teheran – Iran
1973 – 1981 Schulzeit in Teheran
1986 Bundesrepublik Deutschland
1989 – 1996 Studium der Architektur: Universität Stuttgart
1992 „Politecnico di Milano“, Italien
1995 “Akademie der Bildenden Künste“, Stuttgart
1996 Abschluß Diplom an der Universität Stuttgart
1996 – 1998 Mitarbeit bei diversen Architekturbüros im Raum Stuttgart
1999 Mitglied der Architektenkammer Ba.-Wü. Architektenliste-Nr. 57832
2000 Deutsche Staatsbürgerschaft
1999 – 2007 Mit- und Zusammenarbeit
weinbrenner. single.
ArchitektenWerkgemeinschaft
2008 weinbrenner.single.arabzadeh.
ArchitektenWerkgemeinschaft
2011 Mitglied im Bund Deutscher Architekten
Lehrtätigkeit Uni Stuttgart am Institut Wohnen und Entwerfen

Karl-Heinz Single
*08.09.1954 Nürtingen
1960 - 1973 Schulzeit in Nürtingen und Stuttgart
1974 - 1978 Studium der Agrarwirtschaft in Nürtingen, Abschluß Diplom
1979 - 1981 West Africa, Ghana
Mitarbeit bei Gesellschaft für Techn. Zusammenarbeit (GTZ) und Deutscher Entwicklungsdienst (DED)
1982 - 1985 Mitarbeit Semundo Saatzucht in Hamburg
1985 - 1989 Studium der Architektur an der FHT Stuttgart, Abschluß Diplom
1991 Mitarbeit Werkgemeinschaft Weinbrenner-Kuby-Rehm-Maier Nürtingen
1993 Mitglied der Architektenkammer Ba.-Wü. Architektenliste-Nr. 52819
1994 Mitglied im Bund Deutscher Architekten
1996 Partnerschaft in ArchitektenWerkgemeinschaft Nürtingen
2001 weinbrenner. single. ArchitektenWerkgemeinschaft
2008 weinbrenner.single.arabzadeh.
ArchitektenWerkgemeinschaft

Jörg Weinbrenner
*28.03.1956
1963 – 1976 Schulzeit in Nürtingen
1978 – 1980 Universität Stuttgart, Abschluß Vordiplom
1980 - 1981 Technische Hochschule Darmstadt
1981 – 1982 Fulbright Stipendium USA
Virginia Polytechnic Institute & State
University, Virginia, Abschluß
Master of Architecture, USA
1983 Keyes, Condon & Florance, Washington, D.C.
1983 – 1987 E. Ambasz & I.M. Pei & Partners, New York
1989 Mitglied im American Institut of Architecture, Minnesota
1987 – 1991 von Busse & Partner, München
1991 Mitglied der Architektenkammer Ba.-Wü. Architektenliste-Nr. 51827
1991 – 1994 Freie Mitarbeit in Architekten Werkgemeinschaft Nürtingen
1994 Gründung der Architekten Werkgemeinschaft Erfurt
1994 Mitglied im Bund Deutscher Architekten
1995 Partnerschaft in ArchitektenWerkgemeinschaft Nürtingen
2001 weinbrenner.single. ArchitektenWerkgemeinschaft
2001 - 2004 Lehraufträge:
Fachhochschule Nürtingen,
Freie Kunsthochschule Nürtingen
2008 weinbrenner.single.arabzadeh.
ArchitektenWerkgemeinschaft

Das heutige Büro geht aus dem 1953 gegründeten Büro Weinbrenner-Kuby-Rehm-Maier hervor. Das Büro mit Sitz in Nürtingen und Stuttgart beschäftigt derzeit etwa 50 Mitarbeiter, die Baumaßnahmen auf allen wesentlichen Gebieten des Hochbaus u. des Städtebaus planen u. realisieren.
Unser Büro versteht sich als modernes Planungs-, Ausschreibungs- u. Bauleitungsbüro, das sich offensiv den Anforderungen des Wettbewerbs stellt. Eine Vielzahl der realisierten Projekte resultiert aus der erfolgreichen Teilnahme an Architektenwettbewerb

Rembrandtstraße 76
72622
Nürtingen
Germany
07022/9470-0
info@wsa-nt.de

Projekte

weinbrenner.single.arabzadeh. architektenwerkgemeinschaft
Neubau Dreifach-Sporthalle mit integriertem Therapiezentrum, Schloss Stutensee | Ansicht Süd - Haupteingang
Neubau Dreifach-Sporthalle mit integriertem Therapiezentrum, Schloss Stutensee | Haupteingang uns Gymnastikraum
Neubau Dreifach-Sporthalle mit integriertem Therapiezentrum, Schloss Stutensee | Eingang Süd
Neubau Dreifach-Sporthalle mit integriertem Therapiezentrum, Schloss Stutensee | Foyer mit Blick auf den Kiosk
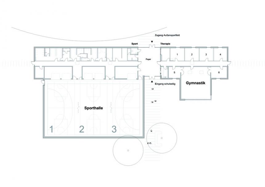
Neubau Dreifach-Sporthalle mit integriertem Therapiezentrum, Schloss Stutensee | Grundriss
Neubau Dreifach-Sporthalle mit integriertem Therapiezentrum, Schloss Stutensee | Gymnastikraum
Neubau Dreifach-Sporthalle mit integriertem Therapiezentrum, Schloss Stutensee | Gymnastikraum
Neubau Dreifach-Sporthalle mit integriertem Therapiezentrum, Schloss Stutensee | Lageplan
Neubau Dreifach-Sporthalle mit integriertem Therapiezentrum, Schloss Stutensee | Sporthalle
Neubau Dreifach-Sporthalle mit integriertem Therapiezentrum, Schloss Stutensee | Sportlerzugang
Neubau Dreifach-Sporthalle mit integriertem Therapiezentrum, Schloss Stutensee | Fassadenanschluss
- Klinker mit Betonfertigteil
Neubau Dreifach-Sporthalle mit integriertem Therapiezentrum, Schloss Stutensee | Ansicht Nord
Neubau Dreifach-Sporthalle mit integriertem Therapiezentrum, Schloss Stutensee | Ansicht Nord
Neubau Dreifach-Sporthalle mit integriertem Therapiezentrum, Schloss Stutensee | Ansicht Ost
Neubau Dreifach-Sporthalle mit integriertem Therapiezentrum, Schloss Stutensee | Ansicht Ost