HDZ architekten

persönlich Name August Kaspar Zinsmeister ( Rufname Kaspar) Abitur Gymnasium bèta Gymnasium Celeanum, Zwolle 1976 Diplom Bauingenieur Richtung Architektur Technische Universität Delft, 1988 (mit Auszeichnung) Karriere 1982 / 1983 Assistent-Architekt Darrow, Mc Spedden and Sellars inc Architects-Planners Dallas, Texas en Shamburger & Associates Architects Arlington,Texas USA seit November 1983 Architekt/ Direktor HDZ architekten 2008/2009 Gastdozent Städtebauliches Entwerfen an der Fakultät Architektur Technische Universität Delft seit 2008 Supervisor Stadtplanung für verschiedenen Städte seit 2013 unabhängiger Gutachter für Europäische Vergabeverfahren Projekte Besuchen Sie bitte die Website des Büros! www.hdz-architekten.nl

büro HDZ architekten ist ein sozial motiviertes Architektenbüro, das mit Ihnen zusammen Ihren Auftrag in einen einzigartigen Entwurf übersetzt. - mit Feingefühl für die Gesellschaft - mit Blick für Detail - mit zielstrebigen Lösungen

Crommelinlaan 18
NL-postbus 426
2600 AK Delft
Netherlands
+3115 257 8400
k.zinsmeister@hdz-architekten.nl

Projekte

ensemble Marco Polo - 103 Sozialwohnungen, Schule mit Sporthalle, Geschäftsräume, Tiefgarage | Südfassade mit Schule
ensemble Marco Polo - 103 Sozialwohnungen, Schule mit Sporthalle, Geschäftsräume, Tiefgarage | Eintritttreppe Schule
ensemble Marco Polo - 103 Sozialwohnungen, Schule mit Sporthalle, Geschäftsräume, Tiefgarage | Ensemble
ensemble Marco Polo - 103 Sozialwohnungen, Schule mit Sporthalle, Geschäftsräume, Tiefgarage | Eingang Tiefgarage
ensemble Marco Polo - 103 Sozialwohnungen, Schule mit Sporthalle, Geschäftsräume, Tiefgarage | Ziegelvolumen - Schnitt Nordseite
ensemble Marco Polo - 103 Sozialwohnungen, Schule mit Sporthalle, Geschäftsräume, Tiefgarage | Scharnierpunkt
ensemble Marco Polo - 103 Sozialwohnungen, Schule mit Sporthalle, Geschäftsräume, Tiefgarage | Eingang Wohnungen und Tiefgarage
ensemble Marco Polo - 103 Sozialwohnungen, Schule mit Sporthalle, Geschäftsräume, Tiefgarage | Ensemble
ensemble Marco Polo - 103 Sozialwohnungen, Schule mit Sporthalle, Geschäftsräume, Tiefgarage | Ziegelvolumen - Schnitt Südseite
ensemble Marco Polo - 103 Sozialwohnungen, Schule mit Sporthalle, Geschäftsräume, Tiefgarage | Ensemble
ensemble Marco Polo - 103 Sozialwohnungen, Schule mit Sporthalle, Geschäftsräume, Tiefgarage | Backsteinhaut
ensemble Marco Polo - 103 Sozialwohnungen, Schule mit Sporthalle, Geschäftsräume, Tiefgarage | Balkone
ensemble Marco Polo - 103 Sozialwohnungen, Schule mit Sporthalle, Geschäftsräume, Tiefgarage | Nordfassade mit Laubengang
40 Reihenhäuser, 12 Doppelhäuser und 50 Appartementhäuser 'Castor und Pollux | Doppelhäuser
40 Reihenhäuser, 12 Doppelhäuser und 50 Appartementhäuser 'Castor und Pollux | Appartementhäuser
40 Reihenhäuser, 12 Doppelhäuser und 50 Appartementhäuser 'Castor und Pollux | Reihenhäuser
40 Reihenhäuser, 12 Doppelhäuser und 50 Appartementhäuser 'Castor und Pollux | Doppelhäuser
40 Reihenhäuser, 12 Doppelhäuser und 50 Appartementhäuser 'Castor und Pollux | Appartementhäuser
40 Reihenhäuser, 12 Doppelhäuser und 50 Appartementhäuser 'Castor und Pollux | Reihenhaus
40 Reihenhäuser, 12 Doppelhäuser und 50 Appartementhäuser 'Castor und Pollux | Doppelhäuser
40 Reihenhäuser, 12 Doppelhäuser und 50 Appartementhäuser 'Castor und Pollux | Appartementhäuser
40 Reihenhäuser, 12 Doppelhäuser und 50 Appartementhäuser 'Castor und Pollux | Reihenhäuser
40 Reihenhäuser, 12 Doppelhäuser und 50 Appartementhäuser 'Castor und Pollux | Detail Doppelhäuser
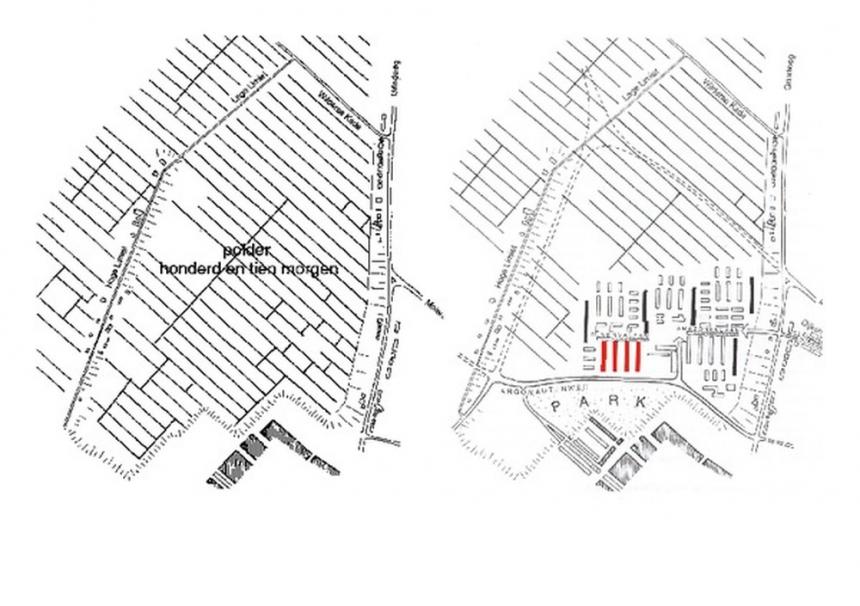
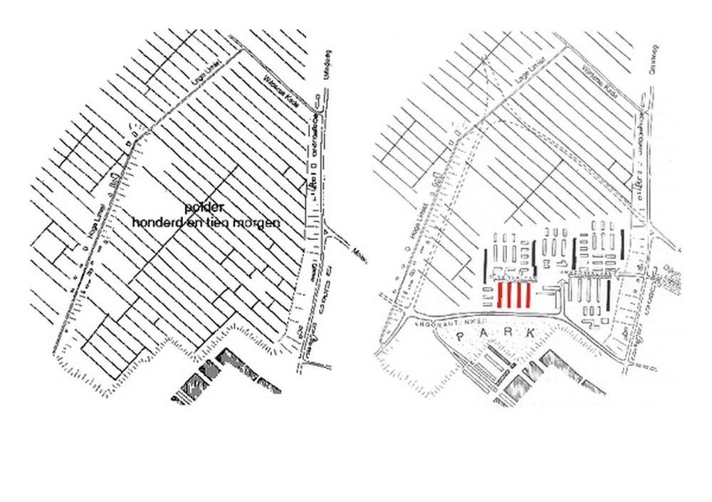
40 Reihenhäuser, 12 Doppelhäuser und 50 Appartementhäuser 'Castor und Pollux | Wiederaufbau Bebauungsplan Polder '110 Morgen'
40 Reihenhäuser, 12 Doppelhäuser und 50 Appartementhäuser 'Castor und Pollux | Phasen Sanierungsplan '110 Morgen' - 2004
40 Reihenhäuser, 12 Doppelhäuser und 50 Appartementhäuser 'Castor und Pollux | Situation 'Castor & Pollux'
40 Reihenhäuser, 12 Doppelhäuser und 50 Appartementhäuser 'Castor und Pollux | Erdgeschoss
40 Reihenhäuser, 12 Doppelhäuser und 50 Appartementhäuser 'Castor und Pollux | Obergeschoss 1
40 Reihenhäuser, 12 Doppelhäuser und 50 Appartementhäuser 'Castor und Pollux | Obergeschoss 2
40 Reihenhäuser, 12 Doppelhäuser und 50 Appartementhäuser 'Castor und Pollux | Fassaden
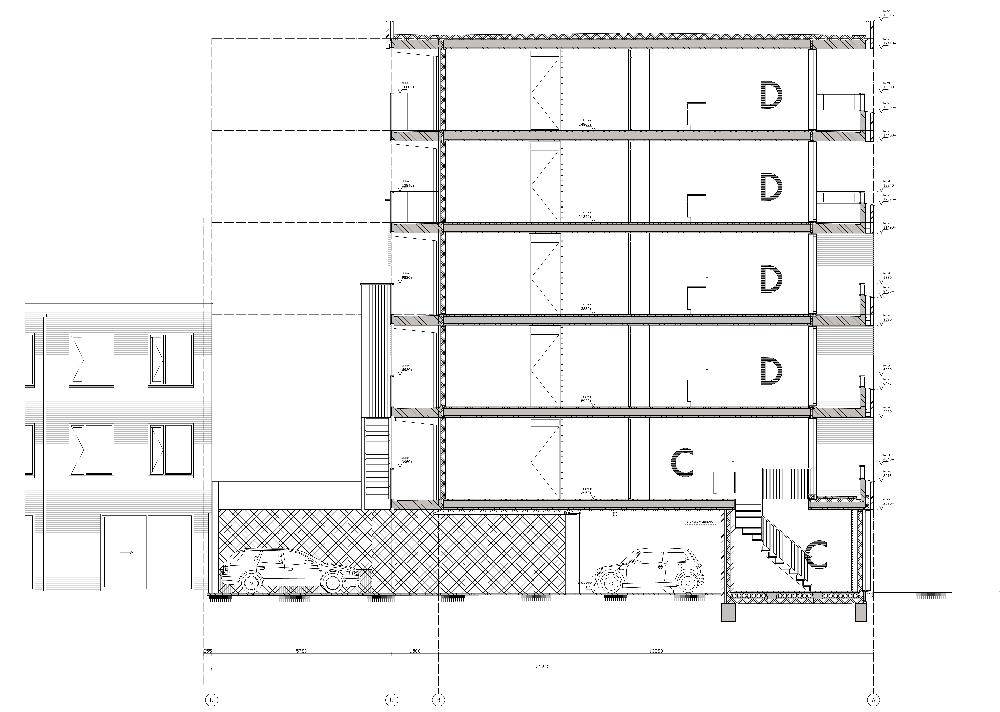
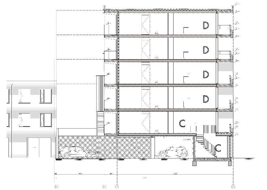
40 Reihenhäuser, 12 Doppelhäuser und 50 Appartementhäuser 'Castor und Pollux | Durchschnitt Hochbau
40 Reihenhäuser, 12 Doppelhäuser und 50 Appartementhäuser 'Castor und Pollux | Skizze Detail Loggia
40 Reihenhäuser, 12 Doppelhäuser und 50 Appartementhäuser 'Castor und Pollux | Skizze Doppelhäuser