Dieter de Vos Architecten
BIOGRAPHY
Born in Ghent, Belgium (1975), Dieter De Vos studied architecture at the University of Ghent,Belgium and at La Sapienza Univeristy of Rome, Italy.
He worked for several years in an international environment at the renowned architectural practices of Dominique Perrault (Paris, France), David Adjaye (London, United Kingdom) and Neutelings Riedijk (Rotterdam, Netherlands).
In 2009 Dieter De Vos Architecten set up office in Brussels, Belgium.
Besides practicing architecture, Dieter De Vos is currently also teaching at the Faculty of Architecture at the University of Leuven, Belgium.
LIST OF PROJECTS
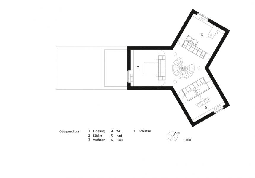
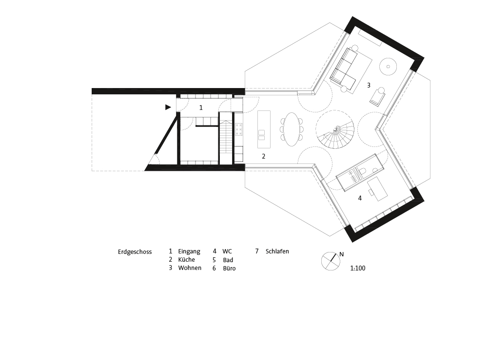
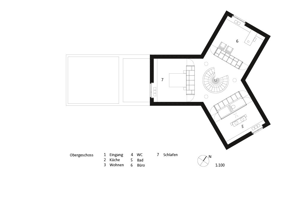
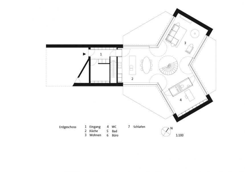
In the past years, the studio has realized several private houses such as Villa Moerkensheide (2013), Villa Willemsdorp (2013) and Villa Humbeek (2014), and developed competition designs for public and cultural buildings, such as Maribor Art Gallery, Slovenia (2010), Cultural Centre Bissegem, Belgium (2011) and University Campus Sion, Switzerland (2013).
Currently, the studio keeps its focus on developing and realizing private houses and public buildings.
